BANCA TEMA Uffici di Promozione Finanziaria

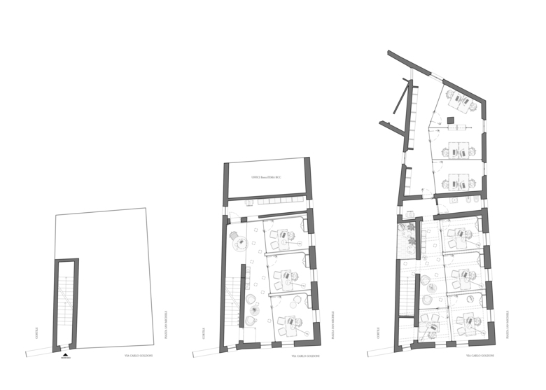
piani principali

Realizzazione di sette uffici distribuiti sui due piani e con ingresso dalla medesima via. Definizione degli spazi mediante setti in Legnopan Wallcovering e pareti vetrate in continuità visiva con le aree di attesa, accoglienza e distribuzione.
Interventi di rifinitura dei prospetti, sostituzione delle finestre, delle soglie e imbotti esterne.
Al piano secondo realizzazione di un giardino d’inverno in corrispondenza della precedente veranda.
Brendizzazione dei prospetti con logo e insegne BancaTEMA BCC.
Progettazione di nuova copertura: tetto a falde con struttura in legno a vista.

schema modulo scrivania di lavoro
vista area attesa e distribuzione
vista ufficio
vista giardino d'inverno
Project Status
Design
Client
Banca Tema

Other Projects by Modourbano Architectural Design 

CHEBANCA! Interior Design
Verona, Italy
COMPASS Headquarters Office Design
Milano, Italy
AZIMUT Interior Design
Verona, Italy
HDI - Corporate Office
Firenze, Italy
T HOUSE Loft in Milan
Milano, Italy