Treasure Box in the Desert Reception Center of the Desert Galaxy Camp
Zhongwei, China
The project is located in the Tengger Desert of Zhongwei City, Ningxia, China which provides supporting services for a tent camp and also serves as the main building of the camp.
The design pays attention to the relationship between the building and the environment, instead of simply imitating the natural form or pretending to hide the building in a low-key. Rather, it gives the architectural narrative in a generous attitude and makes it live in peace with nature. On the other hand, the design also responds to the natural conditions and climatic characteristics of the site, so as to get along with the environment to the greatest extent.
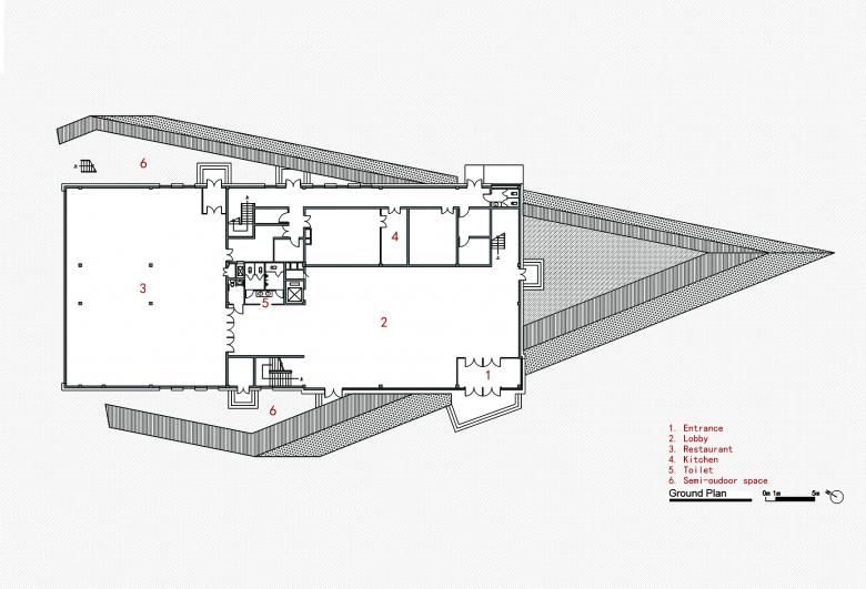
The main building has four floors. Through the stacking and dislocation of horizontal blocks, the functional problems are solved and the space is created at the same time. The outer skin of the building is a rectangular tube inserted obliquely into the ground, with four faces exposed to the ground, forming a "package" for the main body of the building. The two systems form a strong interleaving between the body and the epidermis: some body blocks insert outside the inclined epidermis to form a triangular "bulge". There also are gaps between the inclined planes and the main body in some positions, forming a number of sheltered semi outdoor activity spaces, providing users with different experiences.
The double roofs of the building are in line with the desert climate. The steel roof avoids direct sunlight on the second roof to make the indoor temperature too high. The temperature difference formed by the shadow (between the direct sunlight area and the shadow area) also generates wind, which further reduces the indoor energy consumption in summer and improves the comfort of the space. The perforated design is conducive to the passage of the wind and forms a dramatic light and shadow effect, adding a romantic atmosphere to the semi outdoor space.
About 3andwich Design
3andwich Design is an architectural design firm based in Beijing. It engages in interdisciplinary research and practice including urban renewal, architectural and interior design, exhibition and curatorial, lighting and art. It is expert in cross-border thinking and research-based design. During design practice, 3andwich Design explores the architectural design as strategies of rural regeneration, dialogue between architecture and nature, and translating traditional spatial language to the contemporary.
The practice of 3andwich Design has been published worldwide such as Architectural Record(US), Architectural Review(UK), ARQ(UK), Wallpaper(UK), Architecture and Culture(KR), dezeen, domus, etc. The Studio has participated in many international famous exhibitions such as Venice Architecture Biennale(2016, 2018, 2021, 2023), 11a Biennal Internacional de Paisatge Barcelona(2021), Bucharest Architecture Triennale (Bucharest, Romania, 2019), Kwangju Art Biennial(Kwangju, South Korea, 2015), etc. The architectural works have been honored to receive awards such as First Prize of Excellent Rural Architecture of Ministry of Housing and Urban-Rural Development of the People's Republic of China (2015), Silver Award of Architectural Creation Award of the Architectural Society of China(2016), Highly Commended of Blueprint Award(GB, 2018), AIA International 2022 Design Awards, ARCASIA Awards for Architecture 2022, The Art Directors Club Annual 99th Awards(US, 2020), etc.
Client:Shapotou Tourism Co., Ltd.
Architectural design:3andwich Design
Principal architects:He Wei,Chen Long
Design team:Li Qiushi,Cao Shiqing,Zhao Xinze
Construction drawings:Zhicheng Jianke Design Co., Ltd.
Building area:2600sqm
Design time:Mar. 2018 - Mar. 2019
Completion time:May 2021
Photography:Jin Weiqi
- Architects
- 3andwich Design / He Wei Studio
- Year
- 2021
- Project Status
- Built
Related Projects
Magazine
-
-
Building of the Week
The Three-Body Problem: Trapped in a Wave Sandwich
Eduard Kögel, Scenic Architecture Office | 13.04.2026 -









