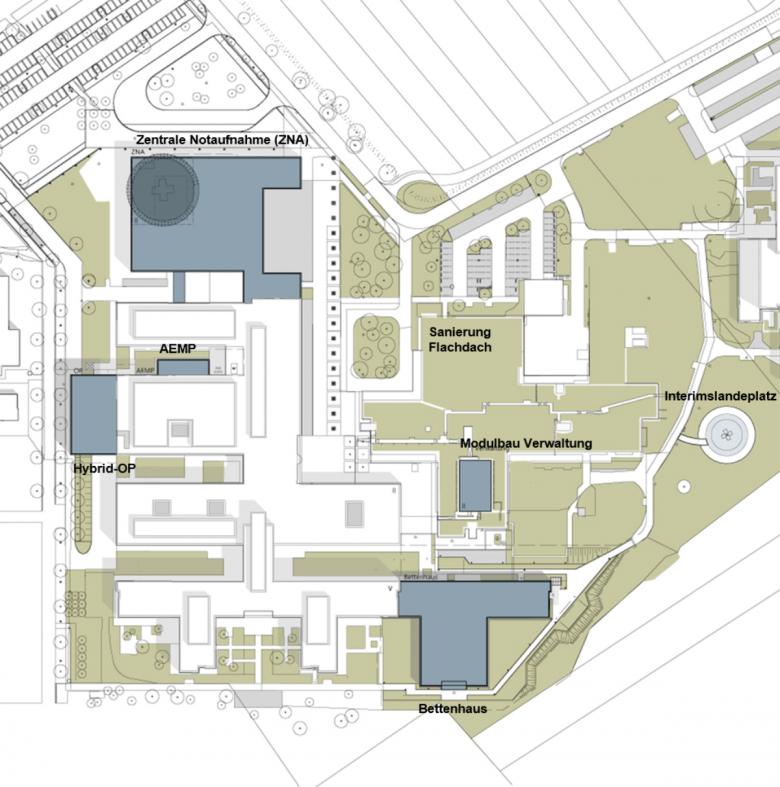
Zentrale Notaufnahme (ZNA) medius Klinik

Nürtingen, Germany
Photo © a+s

Der Neubau der Notaufnahme integriert auf einer Ebene die Funktionsbereiche der
Zentralen Notfallversorgung, einer Kurzliegereinheit, einem CT und einem Röntgenraum, sowie einer Notfallpraxis.

Der Zugang für Patienten befindet sich an der Ostseite des Gebäudes, wo am gemeinsamen Empfangstresen in die Notfallpraxis und die Notaufnahme verteilt wird. An diesen Bereich gliedern sich funktional die Triage sowie die Untersuchungs- und Behandlungsräume an, die sich an der Ost- und Nordfront erstrecken, während die KV-Praxis im Südteil angeordnet ist.

Zentral im Gebäude angeordnet ist der Stützpunkt, der als Schaltzentrale der ZNA,
den schnellen interdisziplinären Austausch ermöglicht und durch die zentrale Lage auf kurzen Wegen für die Mitarbeiter erreichbar ist.
Vom Rettungshubschrauber gelangt man über den Aufzug vom 2. OG direkt an die
Notfallspange.
Der Übergang zum Bestandsgebäude erfolgt über den Erweiterungsbau für das Patienten-Service-Center.

Die Notaufnahme wurde als Generalplanerleistung für die arabzadeh+schneider planungsgesellschaft erbracht.

Photo © a+s
Photo © a+s
Photo © a+s
Photo © a+s
Photo © a+s
Photo © a+s
Drawing © a+s
Architects
arabzadeh+schneider architekten
Year
2025
Project Status
Built
Client
medius KLINIKEN gGmbh Charlottenstr. 10 73230 Kirchheim unter Teck

Related Projects 

  • Moos
    playze
  • Reiters Reserve Premium Suiten
    BEHF Architects
  • Erweiterung und Instandsetzung Hallenbad Altstetten
    MIYO Visualisierung
  • Neubau von fünf Einfamilienhäusern
    Bäumlin+John AG
  • The Forge in der 105 Sumner Street in London
    Kiefer Klimatechnik GmbH

Magazine 

Other Projects by arabzadeh+schneider architekten 

Sanierung, Restaurierung und Umbau Rathaus Tübingen
Tübingen, Germany
Pflegeheim Mengen
Mengen, Germany
Neubau Kreissparkasse Esslingen
Esslingen
Fachklinik Höchsten
Bad Saulgau, Germany
Umbau und Sanierung Bestandshallen Bodanwerft
Kressbronn, Germany