Musikschule, Vereins- und Freizeitzentrum Cham

Der Neubau empfängt die Menschen auf dem Papieri-Areal. Die Kultur-Gasse wird zum Treffpunkt für jung und alt
Visualization © VPA ARCHITEKTUR / Flooer

VPA gewinnt den offenen Projektwettbewerb für den Neubau Musikschule, Vereins- und Freizeitzentrum im Papierei-Areal in Cham, 1.Rang

Der Baukörper bildet einen selbstbewussten Eckstein im Papieri-Areal
Photo © VPA
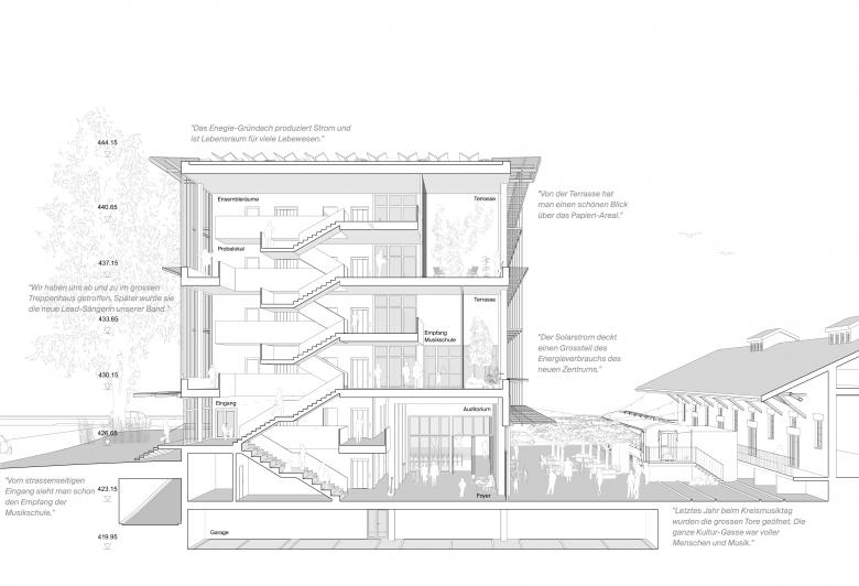
Schnittperspektive durch das Haupttreppenhaus
© VPA
Situation
© VPA
Grundriss Erdgeschoss, öffentlich nutzbare Räume, belebte Kultur-Gasse
© VPA
Grundriss 4. Obergeschoss, Musikschule im Süden, Vereinsräume im Norden
© VPA
Ostfassade zur Knonauerstrasse
© VPA
Westfassade zur Kultur-Gasse
© VPA
Year
2024
Project Status
Design

Other Projects by VPA ARCHITEKTUR 

Verwaltungsgebäude Stampfenbachstrasse
Zürich, Switzerland
Zwicky Verwaltung
Wallisellen, Switzerland
Wohn- und Geschäftshaus ACCU-Areal
Zürich, Switzerland
Schulzentrum Ost Ebikon
Ebikon, Switzerland
Ersatzneubau Schulanlage Saatlen
Zürich, Switzerland