3333 MR Apartments

Abuja, Nigeria
Visualization © Studio Contra Ltd

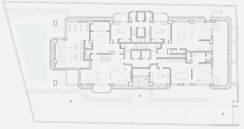
This project is a mid-rise residential building in Maitama, Abuja comprising two lower-ground levels and five above-ground levels on a sloping site, allowing parking and service spaces to be tucked below the main structure.

The building accommodates 11 spacious 3-bedroom apartment units, each with triple aspect and deep terraces on all sides. The design prioritised natural light and airflow and a healthy indoor and outdoor space balance for each unit.

The façade is punctuated by cantilevered planters hosting regional tropical flora, which are irrigated and drained through a central reticulation network using water harvested from rainfall. Planters intersect with the terraces to create distinct outdoor spaces and give privacy to the interior rooms. Together with the cantilevered terraces, they offer shade to the full-glazing and help to reduce heat gain on the interior.

Visualization © Studio Contra Ltd
Visualization © Studio Contra Ltd
Visualization © Studio Contra Ltd
Drawing © Studio Contra Ltd
Visualization © Studio Contra Ltd
Drawing © Studio Contra Ltd
Architects
Studio Contra Ltd
Project Status
Design
Client
Private
Strategic Design
TOKITU Studio

Related Projects 

  • Moos
    playze
  • Reiters Reserve Premium Suiten
    BEHF Architects
  • Erweiterung und Instandsetzung Hallenbad Altstetten
    MIYO Visualisierung
  • Neubau von fünf Einfamilienhäusern
    Bäumlin+John AG
  • The Forge in der 105 Sumner Street in London
    Kiefer Klimatechnik GmbH

Magazine 

Other Projects by Studio Contra Ltd 

WAF Skatepark
Freedom Park, Nigeria
Ishahayi Beach House
Ishahayi, Nigeria
Plantation Road
Ilorin, Nigeria
Ilorin Museum & Garden
Ilorin, Nigeria
Art Guesthouse | MOWAA Campus
Benin City, Nigeria