Gallery of Furniture
This furniture showroom is located on the outskirts of a housing estate in Brno. the original building did not suit its proposed function from a formal point of view, calling for a dramatic rearrangement that would better reflect the business.
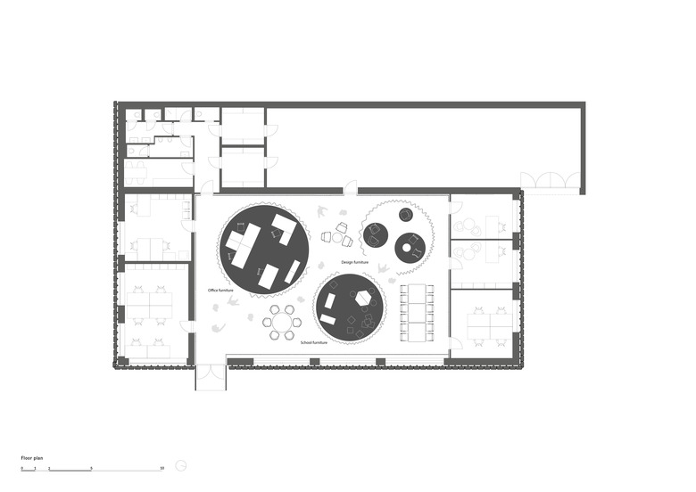
The concept has two layers, the first of which focuses on the interior showcase of furnishings produced or manufactured by the client. the expansive indoor space is segmented by a systematic assembly of sling curtains.
The second layer of the concept addresses the design of facilities for staff, including offices, a warehouse, and technical and sanitary facilities. the new outdoor shell is built using a structure of chairs produced by the company.
- Year
- 2016
- Project Status
- Built
- Client
- MY DVA
Related Projects
Magazine
-
-
Building of the Week
The Three-Body Problem: Trapped in a Wave Sandwich
Eduard Kögel, Scenic Architecture Office | ١٣.٠٤.٢٠٢٦ -















