Neubau Betreuungsgebäude Aemtler
Zürich-Wiedikon, Switzerland
Das neue kompakte Betreuungsgebäude zeigt mit seiner Stellung grossen Respekt vor dem Städtebau und der Architektur der Doppelschulhausanlage des Architekten Gustav Gull. Die Gebäudefluchten der beiden bestehenden Schulhäuser wie auch die beiden Vorplätze der südlichen Kopfbauten werden freigespielt. Die Ansichten der imposanten Schulbauten sind deshalb von keiner Seite verstellt und bleiben auch in der räumlichen Wahrnehmung unangetastet.
Gleichzeitig verstärkt die Setzung des Betreuungsgebäudes in der Achse des grossen Pausenplatzes den Charakter der Doppelschulhausanlage, weil der im Wesentlichen symmetrisch aufgebaute Neubau die Schulbauten Aemtler A und B gleichwertig einbindet. Zusammen mit dem gegenüberliegenden Sportbau Aemtler C werden die Hierarchien - insbesondere wegen der Höhenentwicklung - zugunsten der beiden Gull-Bauten geklärt, was aus denkmalpflegerischer Sicht angebracht ist.
Mit der zentralen Setzung des neuen Baukörpers werden gleichzeitig vier unterschiedliche Aussenräume architektonisch wie nutzungstechnisch definiert.
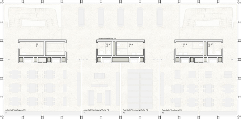
Der zentrale Pausenhof ist zugleich Haupt- und Eingangsseite des viergeschossigen Betreuungsgebäudes, dessen Breitseite mit dem gedeckten und im Erdgeschoss leicht eingezogenen Aussenraum einen glaubwürdigen Abschluss des zentralen Platzraumes bildet. Die vorgelagerte Zone mit bestehenden und neuen Bäumen unterstützt diese Absicht zusätzlich.
Die seitlich vom Neubau anschliessenden Freiflächen bieten einerseits Raum für den Kinderspielplatz und andererseits Raum für den Aussenbereich der Betreuung an. Die in ihrer Wirkung halboffenen Räume - gebildet jeweils aus den rechtwinklig zueinander stehenden Fassaden von Alt- und Neubau - öffnen sich gegen Südosten oder Nordwesten weit in das Umfeld und lassen helle und besonnte Spielräume mit grosser Aufenthaltsqualität entstehen.
Das dem zentralen Spielplatz gegenüberliegende Feld wird vom neuen respektive vom bestehenden Allwettersportplatz besetzt und definiert gleichzeitig den präzisen Übergang in die weitere Grünanlage mit grosser Wiese.
Das neue Betreuungsgebäude trennt und vermittelt dank seiner zentralen Stellung und der gleichwertigen Fassaden zwischen Pausenhof und Sportplatz sowie zwischen den Aussenräumen für kleine Kinder und ältere Kinder.
- Architects
- Leuppi & Schafroth Architekten
- Year
- 2013
- Project Status
- Built
Related Projects
Magazine
-
-
Building of the Week
The Three-Body Problem: Trapped in a Wave Sandwich
Eduard Kögel, Scenic Architecture Office | ١٣.٠٤.٢٠٢٦ -












