Zweifamilienhaus in Steinheim/Murr
Steinheim/Murr, Germany
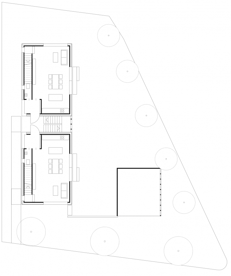
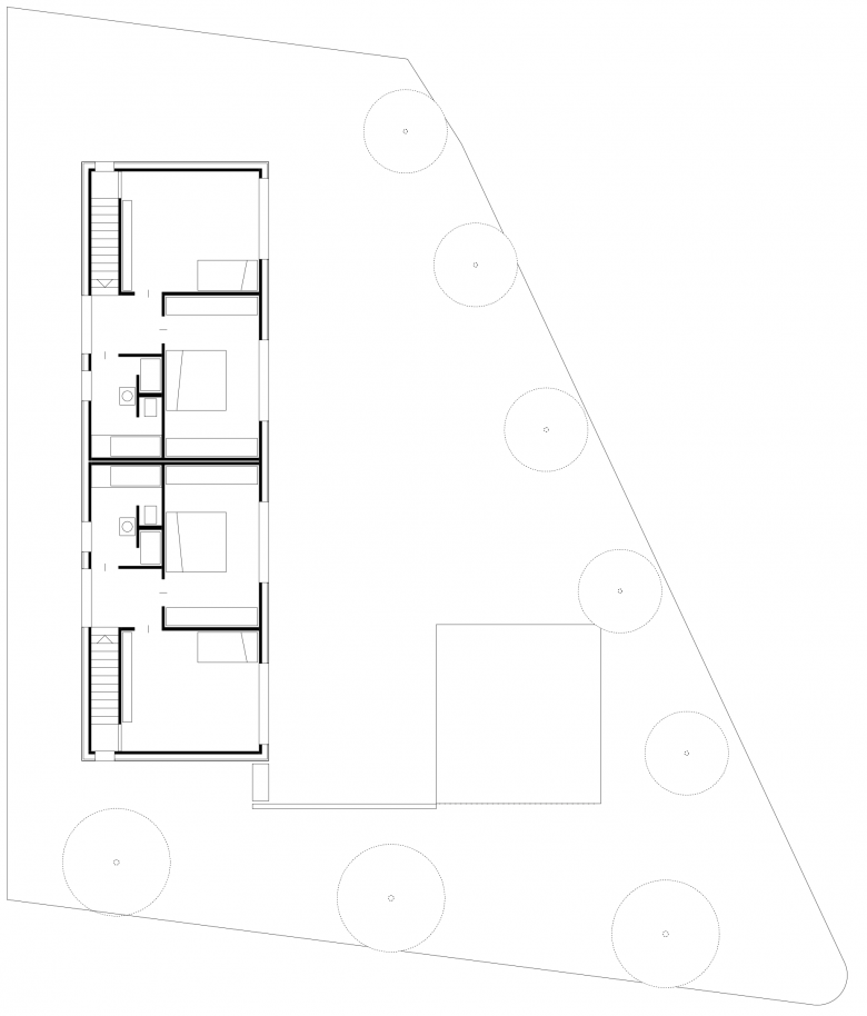
Zwei identische statt eine Wohneinheit
Qualitätvollen bezahlbaren Wohnraum schaffen für soziale Gemeinschaften: Patchworkfamilie, Generationenwohnen, Work@home, Startup-Wohnen, die sich gegenseitig unterstützend organisieren, ist die Grundidee. Konstruktive Konzepte entwickeln die kostengünstiges, ökologisches und ressourcenschonendes Bauen fördern und flexiblen Wohnraum mit hoher Aufenthaltsqualität schafft, ist eine weitere Motivation.
Qualität im ländlichen Raum
Das Zweifamilienhaus mit Carport steht eingebunden in das leicht abfallende Gelände, nach Osten ausgerichtet am Rand einer Wohnsiedlung im Übergang zur freien Landschaft. An der Ostgrenze ein kleiner Bach, begleitet mit Erlenbäumen und im Norden eine Obstbaumwiese unterstreichen die ländliche Idylle.
- Architects
- Architektur 109
- Year
- 2020
- Project Status
- Built
Related Projects
Magazine
-
-
Building of the Week
The Three-Body Problem: Trapped in a Wave Sandwich
Eduard Kögel, Scenic Architecture Office | ١٣.٠٤.٢٠٢٦ -















