The Countryside as Infrastructure
Project Location
Lisbon, Portugal
Topic
Landscape Regeneration Infrastructure
Program
Infrastructure Treatment
The water's course and drainage in the design of public space
Sewage and drainage systems in Lisbon are facing high pressure because of the increasingly frequent torrential rains. A change from unitary to separative sewage reduces the load downstream and a superficial infrastructure integrates the water cycle in the design of the city, activating public spaces where it is slowed, stored, cleaned and enjoyed.
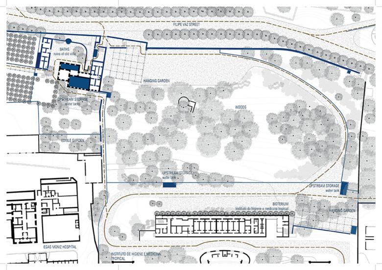
In Lisbon’s Alcântara Valley, water was always the link between different types of spaces: productive, industrial, leisure and monastic. However, the artificialization of the water’s course has complexified its hydraulic and natural systems. The increasingly frequent phenomena of torrential rains, combined with the direct tidal effect of the river and the highly waterproofed slopes overload a weak drainage infrastructure – unable to respond to its needs and where there is, often, an inverse movement: water enters it and the pressure discharges the polluted flows directly into the environment. Born from water, Lisbon lived on it, but forgot its presence. The project aims to praise it again.
The project studies the virtues of the countryside – the draining capacity and landscaping potential – and tries to apply them on an urban context. Infrastructures constitute a huge noise in the lives of the city, even though they are continuously being hidden with its own spatial potential is lost. A reverse evolution is proposed: instead of concealing the infrastructure, it can be used to plan the city. The rainwater draining system has this potential - not only does the change to a separative sewage system enables a substantial reduction in soil erosion and the loads on the downstream infrastructures, which suffer the most from the direct tidal effect, but it also allows for the use of rainwater, currently wasted, to create leisure and productive infrastructural paths along which the water is slowed, stored, cleaned, serving the irrigation of the broad unused areas of Alcântara’s Alto de Santo Amaro. The water cycle is incorporated in the design and life of the city and its public spaces. The proposed infrastructure is a fragmented aqueduct that reveals itself in several formal expressions, both in permeable and impermeable areas: visible or invisible channels, walls, benches, stairs, sinkholes, all of them with an internal slope. Water travels through the ducts by gravitational action and this potential energy always allows for the permanent pressure on the infrastructure. The new permeable areas and various water storage tanks along the hydraulic system admit the deposition of sediments and its reduction downstream. Taking advantage of a shortage of such programs, the public baths are proposed, benefiting from the typological permanence of Quinta do Monte do Carmo, both the built typology, its ruin condition and landscape subunits. The baths, at the hinge of the proposed infrastructure, and its tanks are supplied by the system, after filtration and disinfection, which also waters the edible gardens. This garden typology is explored, trying to sow, care and reap the happiness in the city, strengthening the relationship between landscape, infrastructure, men, the touch of his hand and mouth.
- Project Status
- Design






