Deep Time Palace · The Eye of The Museum
Project Name: Deep Time Palace
Design Firm: Wutopia Lab
Website: http://www.wutopialab.com/
Instagram: wutopia.lab
Chief Architect: Yu Ting
Project Architect: Huang He
Project Manager: Pu Shengrui
Design Team: Pu Shengrui, Pan Dali, Sun Liran (Conceptual Design Phase)
Xie Jialin (Drawing Compilation Phase)
Installation Design: Kuang Zhou, Huang He, Xie Jialin
Owner: Palace Museum of the Manchurian Regime
Owner Construction Committee: Wang Zhiqiang, Hu Hailong, Zhou Bo, Ai Xuesong, Su Zhenda, Liu Yongwei, Wei Wei
Construction Proxy: Changchun Municipal Government Investment Construction Project Management Center
Construction Drawing: Tianjin Architectural Design Institute Co.,Ltd.
Construction Side: China Construction Eighth Engineering Division Co.,Ltd.(North China)
Design Consultants: Wei Minfei, Miao Binhai, Zhang Zhun, Qian Yanmin, Lin Xingchun, Zhang Kejie
Lighting Consultant: Gradient Lighting Design
Chloe Zhang, Zang Yanting, Deng Xiaodan
Interior Design (Non-fair-faced Concrete Area):
Jilin Wuyi Construction Co., Ltd.
Shanghai Hip-pop Architectural Decoration Design Co.,Ltd. (Concept)
Low-voltage System Design: Jilin Beihua Electric Power Technology Design & Research Institute Jilin Yongji Branch
Landscape Design: Changchun Garden Planning Research Institute Co.,Ltd.
Location: No. 5 Guangfu North Road, Kuancheng District, Changchun City
Total Area: 16,650 square meters
Project Time: May 2017 - July 2018
Completion Date: May 2023
Material: Fair-faced Concrete
Photography: CreatAR Images
Video: CreatAR Images
The largest fair-faced concrete underground megastructure in Northeastern China
"Beneath your feet, lies the roof of another profound world."
“UNDERLAND:A Deep Time Journey”
The concrete palace designed by Wutopia Lab, namely The Eye of The Museum of the Palace Museum of the Manchurian Regime (Changchun), which is the first decorative fair-faced concrete building in Jilin Province, the largest fair-faced concrete building in Northeastern China, and the largest thin-shell large-span earth-sheltered swept surface underground building in China, was officially completed and inaugurated on May 18, 2023, International Museum Day, after six years of design and construction.
Just before May 1st, 2017, Mr. Wang, the museum director who had vetoed more than 20 rounds of unsuccessful proposals, approached me with a request. He hoped that I could come up with a proposal that would truly capture the essence of Changchun. My career has always revolved around such urgent appeals, yet I gladly accept the challenge. Changchun was a foreign city to me, thus, I strive to embark on the brilliance within the fragments of the city's history.
Fragments: symbols, metaphors, parallels and others
Changchun, in its bygone days, held the esteemed position of being the most developed city in East Asia. Presently, it remains a pivotal industrial center, resonating with echoes of its former grandeur. Its inherent pride radiates an unwavering optimism, refusing to surrender.
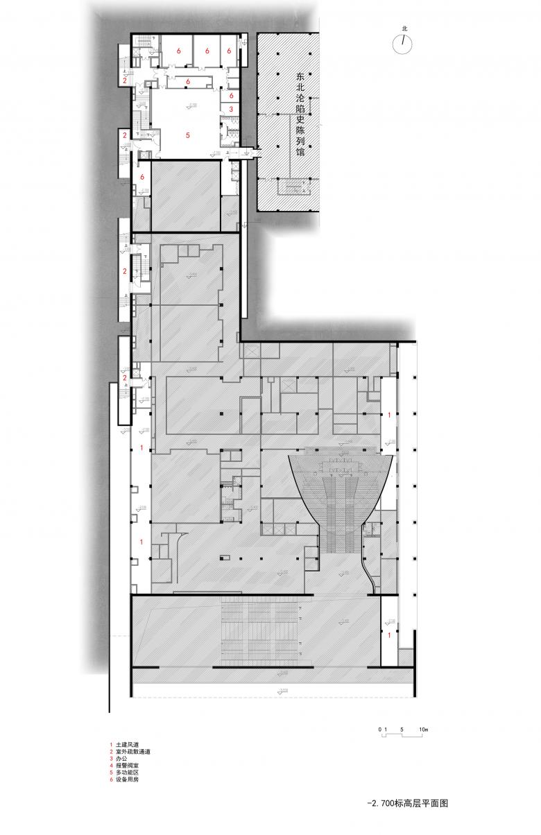
The palace of the Manchurian Regime doesn't occupy much area, so much so that it gives me an impression of a transitional palace. However, its construction exhibits meticulous attention to detail, as the grand roofs harmoniously merge Western classical elements with restrained yet exquisite ornamentations. Standing at the northeastern corner of the palace, the white Museum of the History of Northeast China Under Japanese Occupation, designed by Master Qi Kang, features a gently sloping roof that bows beneath the palace's principal ridge.
I gathered these fragmented pieces into the preceding text. To maintain the stable landscape of the museum, I believe the art museum should adopt a more modest approach. With this in mind, I have concealed the art museum, avoiding any alteration to the established ambiance above. Considering both the palace and exhibition hall follow conventional structures, I have decided to introduce the large-span structure commonly found in industrial buildings, creating vast interior spaces to effectively showcase the city's inherent pride.
I have decided to embrace elegant curves and employ a series of rhetorical devices such as symbolism, metaphor, and association to convey the resolution of the great city's pursuit of reviving her former grandeur in this new era. Simultaneously, the art museum serves as a contemporary expressionist sanctuary that liberates our souls from the constant grip of time in our daily lives, allowing us to reexamine history and memory, and thereby grasp the meaning of our existences.
To unleash the constrained concrete with the invisible steel
My rationale for selecting fair-faced concrete is straightforward - its inherent industrial character. However, my comprehension and portrayal of fair-faced concrete pale in comparison to those of Mr. LIU Yichun and Mr. DONG Gong. I have made the decision to embark on a journey to the remote 1930s when early expressionism used to prevail, in order to liberate concrete from the confines of orderly molds. Drawing upon my familiarity with steel, I employ it as formwork to shape large-span thin-shell swept surface concrete domes. In response to the concerns raised by project architect Huang He regarding the thickness of the protective coating, which could obscure the meticulously arranged panel joints, visible joints, and tie rod eyelets meticulously visualized through BIM technology, I assured Huang He that it actually possesses considerable merit. Took Eero Saarinen's concrete and Le Corbusier's mortar as examples, joints and eyelets are not something necessary for us to express. The protective coating establishes a transparent boundary on the concrete surface, and in the presence of light, the concrete acquires a radiant halo. As lighting conditions shift, the luminescence within the halo gracefully traverses the curves, unveiling a restrained dynamism. No, it is enchantment. It is an enchanting expressionism.
A continuously postponed timetable
The project complexity goes beyond expectation, not only because Changchun experiences frozen ground periods, which means that one-third of the construction time cannot be utilized until the structure is topped off, but also due to various unexpected work stoppages during this period. It led me to doubt at one point whether it could be completed. This hidden giant structure requires meticulous construction process organization to achieve its final grand narrative.
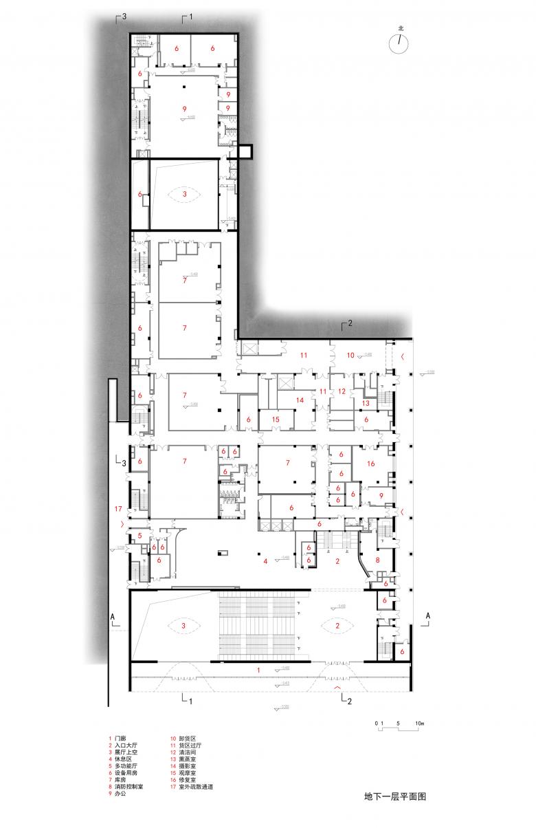
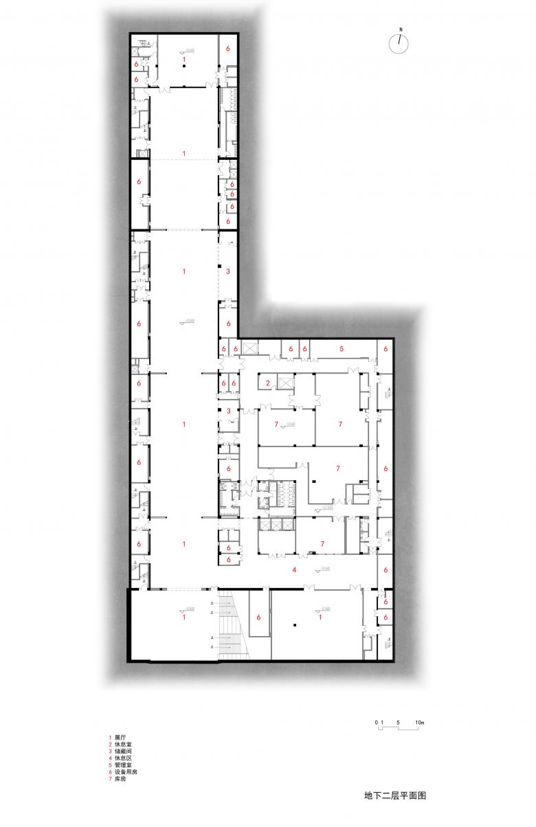
The art museum is situated on a razor-shaped site between the Manchurian Regime palace complex and Museum of the History of Northeast China Under Japanese Occupation. There is a vertical differential of 7.2 meters from north to south. The gross building area is 16,650 square meters. The maximum burial depth on the northern side of the art museum reaches 17.67 meters, while at the plaza entrance on the southern side, it is 10.47 meters. The structure comprises two underground levels. The closest distance between the deep foundation pit of the art museum and the original palace walls and fortifications is about 450mm, necessitating the installation of continuous drilled piles and tie rods. Additionally, new anchor rod static pressure piles are required to ensure balance on both sides of the exhibition hall. Moreover, a new underground passage must be constructed to establish connectivity with the basement of the exhibition hall.
The high formwork decorative fair-faced concrete spans over 10,000 square meters. Cables and pipelines required by the museum must be embedded in advance, meeting the requirements for constant temperature and humidity control, wind resistance, hazard mitigation, security, as well as fire safety. The roof of the art museum consists of a 2,000-square-meter plaza for social activities, a parking lot, and a green space.
We designed a single-layer steel mesh shell with curved glass inserted into the ground in front of the main entrance of the exhibition hall. Going down the steps leads to the art museum's main hall, and turning around presents the exhibition hall framed by an elegant arch-shape.
The continuous roof extends uninterrupted until it abruptly terminates at the southern plaza, where its cross-section forms the imposing facade. The vista in front of the exhibition hall's entrance remains unobstructed, while the southern plaza imparts a sense of the earth being delicately lifted. Nonetheless, visitors would never suspect the existence of a profound underland palace within the crevices of the earth, captivating their hearts and minds.
The Deep time
What fascinates me about museums is that they have transcended beyond mere chronicles and portrayal of human historical achievements. The word "museum" has been given new meanings way deeper than collections of art. Nowadays, museums should delve deeper into the 4.6 billion years history of Earth to search for the true meaning of life and its relativity with time. Different temporal scales give rise to different perspectives on history. This is what I call "Deep Time".
When envisioning the space, I aimed to utilize the underground structure as a starting point to convey the sense of "depth". I also wanted to challenge our conventional mindset of a linear timeline by introducing an immense scale that would disorient viewers. Ultimately, I established central focal points in the form of a wing-shaped swept surface dome as spatial nodes, 27.5m in length, 18m in width, with a peak height of 16.5m. The entire museum consists of three of these spatial nodes connected together, through which I sought to guide visitors in understanding the intricate connections between, life, history, environment, and society in the theme of Deep Time. This exploration aims to prompt introspection on our future decisions as well as the plot of choices in life.
I associate the word "introspection" with eyes. Consequently, I made the decision to integrate skylights resembling eyes into thin-shell swept surface domes that gracefully emerge from the ground, guiding the natural light into the underground space. Eyes bear a conspicuous symbolic significance and amplify the role of natural light in shaping the viewers' encounters and interpretations. They serve as a means of guiding viewers towards a contemplation of temporal perspectives within the ephemeral span of their lives.
The sun beats on me
Undoubtedly, the essence of the art museum is shaped by the presence of natural light. While underground structures typically serve as refuges, the interplay of natural light uncovers the profound "depth" concealed behind the grandeur of the museum, imbuing it with a sense of spirituality and sanctity. As you stand amidst these interconnected spaces, guided by the interplay of skylights, you may perceive a fleeting illusion of eternity or, perhaps, the essence of time itself. The profound "depth" disorients you within the relentless current of time, which we all traverse from the moment of birth. The shadows cast by natural light undergo a gradual and prolonged metamorphosis upon the ground. Initially, you may experience a hint of restlessness, then a growing compulsion. Ultimately, you come to appreciate the captivating beauty of the light—strange yet familiar, intangible yet enveloped within its ethereal projection. It calls to mind a verse: "Que há noite antes e após. O pouco que duramos." ("There is night before and after. The brief time that we live.") In this moment, you may encounter both anguish and solitude, while also marveling at the wondrous nature of life. It evokes within you a gentle recitation of verses or even an impromptu dance of awe.
This light originates from two decades past. In 2003, I navigated through the bustling masses near the Trevi Fountain and embarked on a solitary journey to the Pantheon. Owing to the clouded sky, the entire temple appeared as a somber figure amidst the expanse of marble structures. Standing within this BDO, I became engulfed in the bewildering shadows, losing my sense of direction. Suddenly, the sun emerged through the dome, piercing the darkness with its radiant beam, which found its mark upon me. In that ephemeral instant, I was consumed by a profound sense of disorientation and bewilderment.
From the Underland to the Celestial
I conceal the intricate functions of the museum on either side of the main space, emphasizing the purity of the main space, which early evokes the most common perception of time - eternity. However, I have always harbored skepticism towards the concept of eternity. Perhaps, due to the brevity or fragility of our lives, humanity tends to employ vast and solid entities as symbols of eternity, yet this inclination is largely illusory. Within the subterranean natural light, in that fleeting moment of time, amidst the pursuit of the ever-shifting and distant illumination that binds the three spatial nodes, individuals may momentarily experience a semblance of eternity, though in truth it amounts to mere minutes. The multitudes, unrestricted by the confines of place, and their diverse and ever-changing perceptions in disparate moments, embody the essence of eternity. The Deep Palace captures this fleeting eternity within its seemingly immobile material expanse.
Everything causes scintillation.
Prior to the inaugural ceremony, I traversed through the exhibition hall, making my way to the profound depths of the museum, where I concealed myself within the obscurity, witnessing the descent of the morning sunlight through the eyes' skylight. After a while, I discerned an almost imperceptible breath, as if the curved dome had metamorphosed into colossal wings, gently undulating. The art museum awakened, as if poised to emerge triumphantly from the earth's embrace. There exist moments in one's existence, unassuming days suddenly imbued with the presence of formidable forces, where the very ground trembles - a felicitous occurrence indeed.
“For to think in deep time can be a means not of escaping our troubled present, but rather of re-imagining it; countermanding its quick greeds and furies with older, slower stories of making and unmaking. At its best, a deep time awareness might help us see ourselves as part of a web of gift, inheritance and legacy stretching over millions of years past and millions to come, bringing us to consider what we are leaving behind for the epochs and beings that will follow us.”
“UNDERLAND:A Deep Time Journey”
Easter Egg
Alongside the grand opening on May 18th, Wutopia Lab unveiled their newly established Wuto-Art, featuring a planar installation of perforated aluminum panels, showcasing the artistic prowess of Yu Ting. In the future, customized thematic perforated aluminum panel installations and digital derivatives created by Wuto-Art will be seen in all of Wutopia Lab's architectural projects. The completion of a building does not signify its conclusion but rather marks the commencement of a new cycle.
- Year
- 2023
- Project Status
- Built
































