eingebettet köfererhof
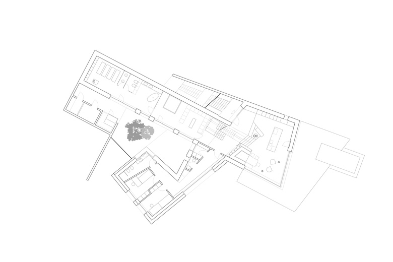
das neue wohnhaus entsteht unmittelbar neben dem elterlichen bauernhaus, auf dem hügel oberhalb des kloster neustifts. ein gebäude, das in seinem ursprung mit der landschaft verwurzelt ist und nach oben wachsend teil der reblandschaft wird. ein langgezogener körper, der sich im geländeverlauf zu einer hofsituation ausweitet. das gebäude wird teil der rebhänge, der landschaft. es entsteht eine neue „mitte“, ein offener, aber intimer bereich, ein innenhof, um den sich der monolith schmiegt. außen der rohe gewaschene beton, innen ein holzbau in sich stehend, der zugleich die konstruktive und statische funktion als dachträger übernimmt. ein weiterführen, ein sich öffnen, ein herauswachsen. ein spiel mit zwischenräumen, mit höhen und ausblicken.
- Year
- 2015
- Project Status
- Built














