Medizinzentrum Anichstraße der TILAK

Photo © Günter Richard Wett

Europaweiter Wettbewerb 1997

Baubeginn 1998

Betriebsaufnahme 2001

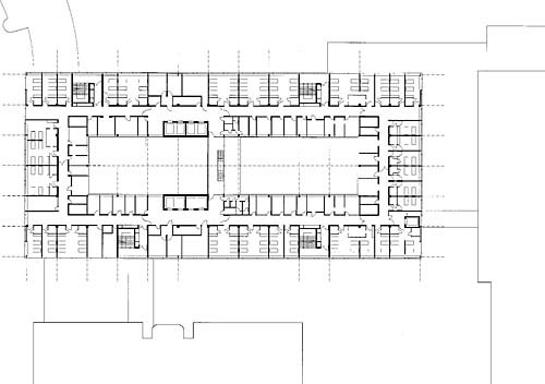
Das Interessante an dieser Aufgabe ist die hohe Urbanität des Bauplatzes wie auch die hohe Frequenz der Nutzung.

Das Projekt versucht, im Gegensatz zur allgemeinen Tendenz der 60er und 70er Jahre, fast alle Räume natürlich zu belichten. Dies nicht nur für die ständig in diesem Objekt Arbeitenden von Vorteil, sondern dient vor allem als Instrument der Reduktion der Angst der Patienten vor der "Blackbox-Intensivmedizin". Räumlich ist das Projekt so aufgebaut, daß in einer ring- oder schleifenförmigen Anordnung der Räume eine offene Mitte - ein begrünter Hof - liegt, in dem zentral pavillonartig die Foyerbereiche angeordnet sind.

Durch die Gleichartigkeit der Fassaden wird die schon jetzt vorhandene, sehr sympathische Wahrnehmung des Spitals als Teil des Stadtraumgewebes noch verstärkt. Durch die forcierte Verwendung von Holz und Farbe wird eine nicht institutionelle Atmosphäre erzeugt.

Photo © Günter Richard Wett
Photo © Günter Richard Wett
Photo © Günter Richard Wett
Photo © Günter Richard Wett
Photo © Günter Richard Wett
Photo © Paul Katzberger
Photo © Günter Richard Wett

Other Projects by Paul und Karin Katzberger 

Platzgestaltung Neuer Markt
Wien 1, Austria
Kalorisches Kraftwerk
Theiss, Austria
EVN Biomasse Fernheizkraftwerk
Baden, Germany
Aufnahmegebäude Bahnhof
Wiener Neustadt, Austria
Landesbibliothek und -archiv
Niederösterreich, Austria