Außentreppe und Lüftungsbauwerk am Kollegiengebäude I

Freiburg, Germany
Ansicht vom Platz der weißen Rose
Photo © Achim Birnbaum

Die neue Außentreppe steht als eigenständige Skulptur in der offenen Nordostecke des Hauptbaus des Kollegiengebäudes I der Universität Freiburg. An dieser Position, der Schnittstelle von Platz der weißen Rose und Platz der alten Synagoge, ist sie zu beiden Plätzen gut sichtbar.

Eine bestehende Platane galt es zu erhalten und neben der Funktion als Fluchttreppe auch die Zuluftansaugung des benachbarten Kollegiengebäudes II unauffällig in die Gesamtgestaltung zu integrieren. Die Fluchttreppe ist somit auch Lüftungsbauwerk.

Die Wahl der Materialien und Bauteilqualitäten orientiert sich, neben den brandschutztechnischen Anforderungen, vor allem am sensiblen Umgang mit dem denkmalgeschützten Bestand. Während sich die Gestaltung und die Ausführungsqualitäten in den repräsentativen Innenbereichen am originalen Erscheinungsbild des Billing’schen Entwurfs des Hauptbaus orientieren, ist das Leitbild bei den ergänzenden Einbauten und Bauteilen eine eher abstrakte, moderat modernere Gestaltung unter Verwendung von dem Gebäude verwandten Materialien. Die abstrakt skulpturale Erscheinung des Treppenbauwerks tritt dabei nicht in Konkurrenz zum Bestand, sondern ergänzt diesen behutsam. Die sich mit der Zeit verändernde Kupferhülle greift dabei die Materialität von Blechdächern und Regenrinnen das Hauptbaus auf.

© Achim Birnbaum
© Achim Birnbaum
© Achim Birnbaum
© Achim Birnbaum
Lageplan
© Kuhn und Lehmann Architekten
Isometrien Abfolge
© Kuhn und Lehmann Architekten
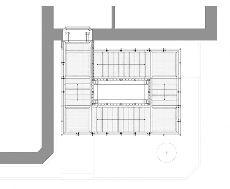
Grundriss
© Kuhn und Lehmann Architekten
Schnitt
© Kuhn und Lehmann Architekten
Architects
Kuhn und Lehmann Architekten
Year
2019
Project Status
Built
Client
Vermögen und Bau Baden-Württemberg - Amt Freiburg
Team
David Streck, Daniel Lenz

Related Projects 

  • Moos
    playze
  • Reiters Reserve Premium Suiten
    BEHF Architects
  • Erweiterung und Instandsetzung Hallenbad Altstetten
    MIYO Visualisierung
  • Neubau von fünf Einfamilienhäusern
    Bäumlin+John AG
  • The Forge in der 105 Sumner Street in London
    Kiefer Klimatechnik GmbH

Magazine 

Other Projects by Kuhn und Lehmann Architekten 

Kindertagesstätte Kinderhaus Franziskus
Stuttgart-Kaltental, Germany
Evangelisches Gemeindezentrum Herbolzheim
Herbolzheim, Germany
Zentrales Kunstdepot Freiburg*
Freiburg, Germany
Wohnsiedlung in Illzach (F)
Illzach, France
Wohnungsbau Marschallhof (F)
Strasbourg, France