Erweiterung Sekundarschulhaus Imbach Il

Steinlerstrasse 9, Wängi, Switzerland
Photo © Beat Bühler

Mit der neu zu planenden Schulerweiterung in Wängi sollen einerseits betriebliche Defizite behoben werden, andererseits soll eine Entflechtung der verschiedenen Altersstufen herbeigeführt werden. Die Intervention beschränkt sich auf zwei Eingriffe auf dem Schulareal. Dadurch wird eine neue, klare und altersgerechte Zuordnung erreicht. Mit der Erweiterung des bestehenden Schulhaus Imbach II können sämtliche Schulräume der Oberstufe in einem Gebäude untergebracht werden. Der bestehende, terrassierte Pausenhof wird mit dem zweigeschossigen Erweiterungsbau räumlich klar gefasst. Die Erweiterung ordnet sich unter dem Thema «Weiterbauen der vorhandenen Bausubstanz» ins Gesamtbild der Schulanlage ein. Im Innern wird die räumlich strukturelle Logik des Bestandes fortgeschrieben. Aufgrund der räumlichen und betrieblichen Defizite schlagen wir einen Ersatzneubau am Standort des ehemaligen Wartheimgebäudes vor. Der dreigeschossige Neubau markiert neu den Arealeingang von der Steinlerstrasse her und bildet damit das «neue Gesicht» nach aussen hin. In der räumlichen Wahrnehmung und seiner Präsenz liest sich der Neubau als Pendant zum bestehenden markanten Dorfschulhaus. Die allseitige Ausbildung des Gebäudekörpers mit den Einschnürungen und Rückstaffelungen trägt zu einer adäquaten Adressbildung und einer Einordnung in den Kontext bei. Der Neubau wird so in die abfallende Topographie gesetzt, dass zwei Zugangsniveaus entstehen. Ein unteres Niveau dient dem Zugang zur Tagesbetreuung. Ein oberes Niveau erschliesst die beiden Kindergarteneinheiten direkt ebenerdig und schliesst auf gleicher Höhe wie der bestehende Kindergarten Steinler an.

Photo © Beat Bühler
Photo © Beat Bühler
Photo © Beat Bühler
Photo © Beat Bühler
Photo © Beat Bühler
Photo © Beat Bühler
Photo © GruberForster
Schema Gesamtanlage
Drawing © Soppelsa Architekten GmbH
Schema Nutzungsverteilung
Drawing © Soppelsa Architekten GmbH
Schema Adressierung
Drawing © Soppelsa Architekten GmbH
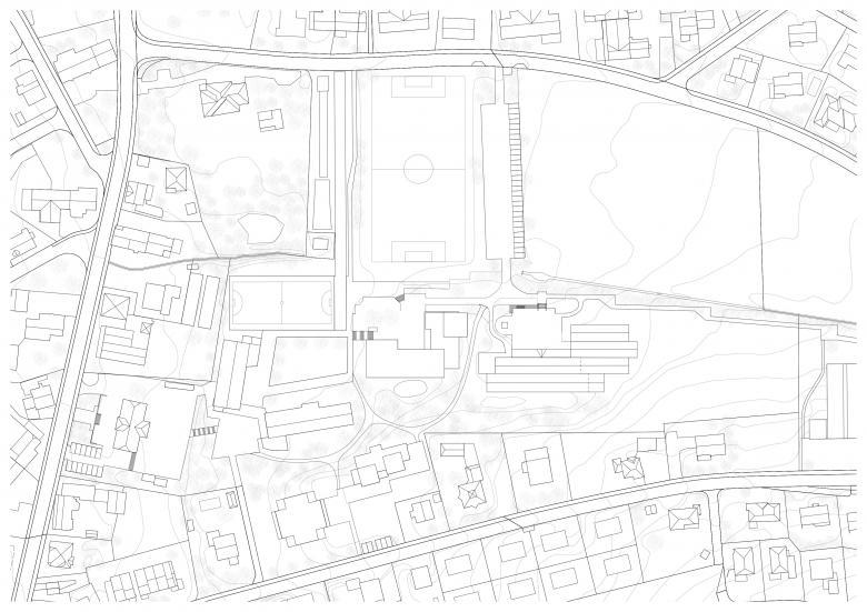
Situationsplan
Drawing © Soppelsa Architekten GmbH
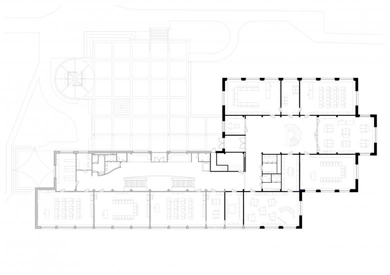
Grundriss Erdgeschoss
Drawing © Soppelsa Architekten GmbH
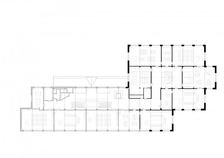
Grundriss Obergeschoss
Drawing © Soppelsa Architekten GmbH
Querschnitt
Drawing © Soppelsa Architekten GmbH
Ansicht Ost
Drawing © Soppelsa Architekten GmbH
Architects
SOPPELSA ARCHITEKTEN
Year
2023
Project Status
Built
Client
Volksschulgemeinde Wängi

Related Projects 

  • Gymnasium Schulstraße
    Kronaus Mitterer Architekten
  • GROHE Water Experience Center
    D’art Design Gruppe GmbH
  • Limmatquai 4
    Kästli Storen
  • Volksschule Erlaaer Schleife
    Kronaus Mitterer Architekten
  • Ortsdurchfahrt Domat/Ems
    Luminum GmbH

Magazine 

Other Projects by SOPPELSA ARCHITEKTEN 

Wohn- und Geschäftshaus Sue&Til
Winterthur, Switzerland
Konferenzgebäude
Posieux, Switzerland
Erweiterung Schulanlage Steig
Schaffhausen, Switzerland
Neubau Oberstufenzentrum Rötschmatte
Ins, Switzerland
Neubau Wohnhaus Baufeld E Oberstadt
Aarburg, Switzerland