Four Pieces of Different Scale Furniture

Singapore Science Park in Xiasha district, Hangzhou, China
Movable screen and steps
Photo © Zhao Qiang

Four Pieces of Different Scale Furnitures

Background
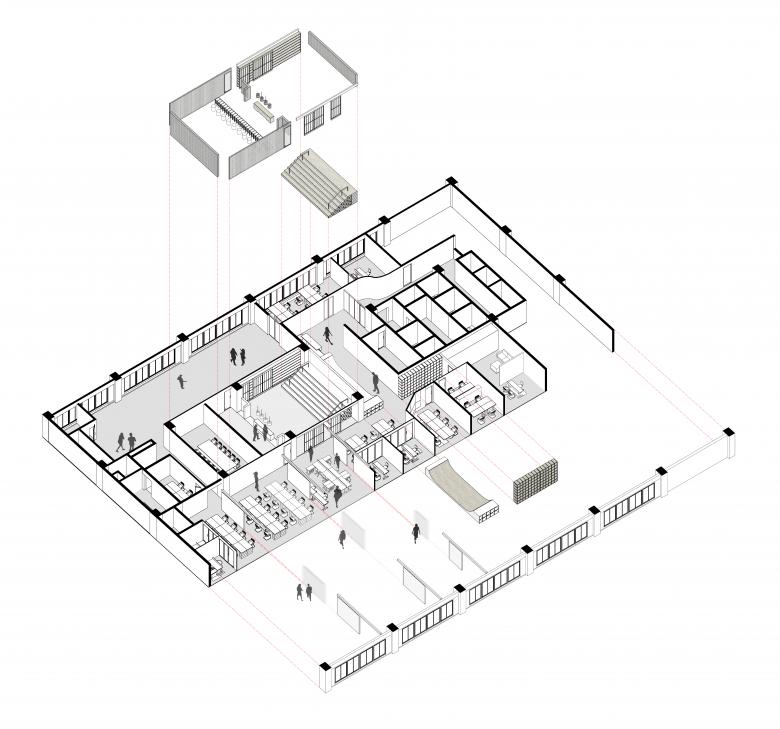
The project is located in the Singapore Science Park in Xiasha district of Hangzhou, China with a standard floor area of1200 sqm, which is the new office of LANDER electric gaming cultural company. This is the work of Architect LI Wenxi when he study as a Ph.D. candidate in Waseda University, Japan.

Question
The surface is long strip-shaped, how to create the space with four consecutive styles of waiting, communication, having rests and working but totally different atmosphere from the space with width of 25 meters and length of 50 meters becomes the first problem when beginning to design.

Paragraph
What enlightens us is the processing of space paragraph in Chinese traditional scroll paintings.

“Han Xizai Evening Banquet” of the imperial palace in Beijing is divided into five paragraphs, which are respectively music, dance, relaxation, play and farewell. Different spaces in the paintings are divided with the furniture such as couches, screens and desks, with Han Xizai who appears in every paragraph as the protagonist of the narration, lying and talking, or playing drums or waving hands, which is closely related to his behavior. As the important carrier of behavior, furniture plays an important role of plot segmentation, behavior suggestions in narrations.

Translation

Based on the interests in the translation of paintings element space, we have designed four pieces of different scale furniture between the spaces with different demands, which not only divides the space but also bears the function.

1. Cambered seat
The cambered seat becomes the start of narration after entering the door, we don’t want to make waiting time boring so as to increase the support of cambered surface for the white sofa, which presents various possibilities for the posture of sitting.

2. Couch
The step shaped space is designed for communication and relaxation, not for the communication between the upper and lower layers but just to provide the space which is similar to the bed for talking and even lying by multiple people.

3. Long Table
The 8 meter long table designed for the tea room is the humble decoration in the narrative climax, and also the place where employees must arrive for relaxation.

4. Screens
Three white moving walls divide the big space into three departments of design department, gaming department and marketing department, with the moving of the interface, each department could contact and separate timely.

Rain Hill
The use of large area glass bricks makes the space blurred, it seems that people are on the hills after raining with the soft light coming through the interfaces. The ambiguous way of dividing space is to weaken the separation of dead walls and increase the joy when walking inside.

Postscript
This is a design practice about the basic problem of architecture-division. The specialization of traditional painting language is interesting and full of challenges.

Movable screen and steps
Photo © Zhao Qiang
moving the screen
Photo © Zhao Qiang
axonometric
Visualization © Li Wenxi
seat with curved surface
Photo © Zhao Qiang
seats or steps
Photo © Zhao Qiang
another movable screen
Photo © Zhao Qiang
model
Visualization © Li Wenxi
glass-brick
Photo © Zhao Qiang
reception space
Photo © Zhao Qiang
Architects
LI WENXI ARCHITECTS
Year
2017
Project Status
Built
Area
1200sqm
Team
LI WENXI Architects
Architect in Charge
LI Wenxi
Design team
Zhang Hanjun, Zhao Jian, Wu Shunchi, Pang Mengxia, Lu Zhaoyang, Jiang Yuqi (Special Thanks)

Related Projects 

  • Gymnasium Schulstraße
    Kronaus Mitterer Architekten
  • GROHE Water Experience Center
    D’art Design Gruppe GmbH
  • Limmatquai 4
    Kästli Storen
  • Volksschule Erlaaer Schleife
    Kronaus Mitterer Architekten
  • Ortsdurchfahrt Domat/Ems
    Luminum GmbH

Magazine 

Other Projects by LI WENXI ARCHITECTS 

Boundary House
Luohe, China
MA House
Quzhou, China
Tianmei Theater
Hangzhou, China
Red Note House on the Horizon
Anji, China