Fraunhofer-Institut für Holzforschung Wilhelm-Klauditz-Institut WKI, Braunschweig
Braunschweig, Germany
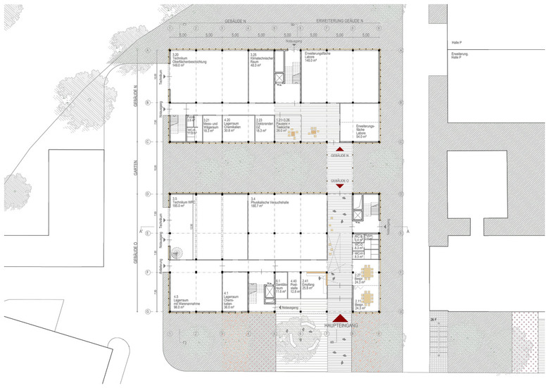
Die Fraunhofer-Gesellschaft plant für das Fraunhofer-Institut für Holzforschung Wilhelm-Klauditz-Institut WKI in Braunschweig den Neubau des Technikums Halle B, eines Büro- und Laborgebäudes (Gebäude O), sowie eine Erweiterung des Lacktechnikums (Gebäude N). Die neuen Gebäude, insbesondere die neue Technikumshalle werden als Holzbauten errichtet. Der Forschungsschwer-punkt des Instituts für Holzforschung wird so am Gebäude ablesbar.
Die Anordnung des skulpturalen Holzbaus schafft eine neue Eingangssituation zum Campus am Bienroder Weg, ohne dabei selbst zum Hauptgebäude zu werden. Die Technikumshalle B ist über seine Materialität aus Holz als dienender Baukörper erkennbar und verweist auf das Stammgelände. Der Eingang zur Technikumshalle orientiert sich eindeutig zum Campus. Ein kleiner Vorplatz bindet das neue Technikum an den Campus an und schafft eine angemessene Eingangssituation zum Neubau.
Die baulichen Maßnahmen im Stammgelände, insbesondere der Neubau des Labor- und Bürogebäudes (Gebäude O) stärken das Forum, die grünen Mitte des Campus des WKI und definieren klar die Ränder zu diesem zentralen, repräsentativen Freiraum. Er hat eine hohe Aufenthaltsqualität für die Mitarbeiter und Besucher des Instituts. Die Setzung maßstäblicher Einzelbaukörper führt zu einer harmonischen Weiterentwicklung und Verdichtung des Campus. Der Neubau des Labor- und Bürogebäudes (Gebäude O) und die Erweiterung um das Bauteil N sind als einzelne Bausteine ablesbar. Großzügige störungsfreie Freiräume bieten Erholungsflächen für die Forscher und schöne Ausblicke aus den Labor- und Büroräumen.
- Architects
- huber staudt architekten bda
- Project Status
- Design
- Client
- Fraunhofer-Gesellschaft zur Förderung der angewandten Forschung e.V.
- Team
- José Carlos Castro Barros, Christian Huber, Sohta Mori
- Bauleitung
- rw+ architekten













