Haus Rheinland-Pfalz, St.Vincenzstift
Vincenzstraße 60, Rüdesheim | Aulhausen, Germany
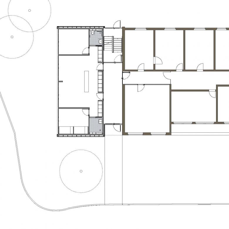
Das bestehende dreigeschossige Wohnhaus Rheinland Pfalz ist perspektivisch an aktuelle Wohnformen, neue pädagogische Erkenntnisse und energetische Anforderungen anzupassen. Die hierfür notwendige Erweiterung wurde vorgezogen und wird interimsmäßig als Tagesbetreuung genutzt. Offen konzipierte Bewohnerküchen bilden den Mittelpunkt der hellen und lichtdurchfluteten Tagesbetreuung und laden zum Mitmachen ein. Große Holzfensterflächen im Übergang zum Bestand sowie an der Stirnseite charakterisieren die äußere Anmutung des Hauses.
Zeitraum
2009 – 2013
- Architects
- Waechter + Waechter Architekten
- Year
- 2013
- Project Status
- Built
- Client
- St. Vincenzstift gGmbH
- Aufgabe
- Tagesbetreuung für behinderte Menschen, Anbau Haus RLP
Related Projects
Magazine
-
-
Building of the Week
The Three-Body Problem: Trapped in a Wave Sandwich
Eduard Kögel, Scenic Architecture Office | 13.04.2026 -









