House Z22 and Warehouse F88

Zurich, Switzerland
Photo © Bruno Helbling

In Dialogue With History

House Z22 and Warehouse F88 - This is a Reconstruction of a multi-family house with workshop rooms underneath in the area Seefeld of the city of Zurich. The house has been in a core zone since the new regulations. Therefore the outlines of the existing volumes are protected and the project had to be  developed in collaboration with the conservation of monuments.

The project is a contextual dialogue with history, the house is 170 years old. The historic, massive stone walls were the starting point for applying new contemporary forms of living – fresh typologies:

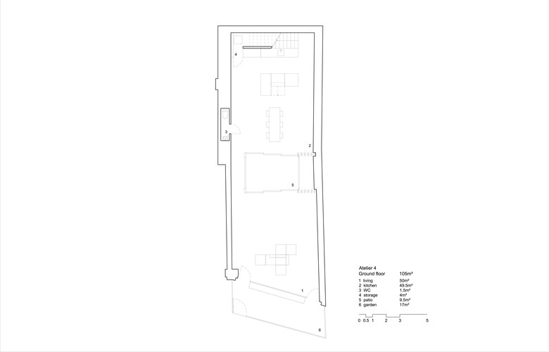
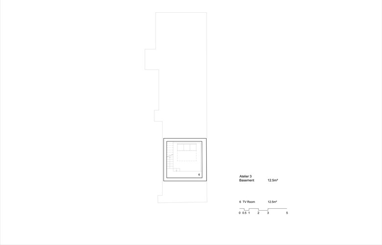
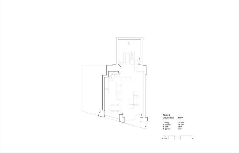
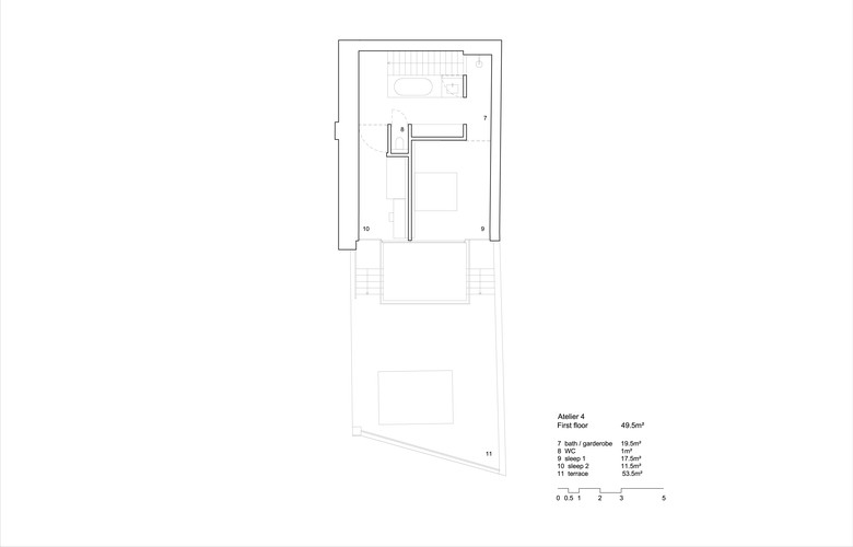
5 small apartments in the 'house' and 4 residential ateliers in the former workshops.

House Z22 - The dwelling house is a townhouse built 170 years ago. The natural stone walls were created so long ago, but even then the walls were plastered. Now we have removed the original plaster layers and this led to a raw state of the natural stone walls, which never existed. It is a reference to the material, the construction and to the 'work' itself, how was it made?

The architectonic-social aspect, the bourgeois house of the time, is playing a minor part but it is still the same house from the outside.

In a confined space, we have developed a flowing, free-flowing space along the natural stone walls. A new typology of 'promenade architecturale' in a confined space, where, depending on the social structure and the course of the day, the programs unfold and communicate with the periphery, the natural stone wall.

The built in light weight strucures are plastered with basic plaster - and have a rocky appearance. The built-in furniture is made of raw concrete, raw wood and raw plaster.

The wooden windows were mounted directly onto the natural stone slabs with 20cm thick solid wooden frames.

Stone Arches And Concrete Topography - In the workshops we answered to the large natural stone arches with a topography of concrete - a contemporary response to a strong historical element.

A stone landscape takes up programs that are only marginal in appearance - tectonics and light are in the focus, filling the space with a poetic force.

Raw Is Finished - We have natural stone walls of one meter width, concrete furniture and wooden windows with a 20 cm thick solid frame. The dialogue on the historical context consists in the reference of the 'work', how and by whom was it made - at that time large stone blocks were stacked together - today, topographies were formed from reinforced concrete.

It's about the craft.

All the elements were put into the raw original state or it was rebuilt raw - a tribute to the material - without hierarchization. There are no inferior materials. Social contamination and connotation disappear. As a result, the space becomes free and authentic - just as people can be.

Photo © Bruno Helbling
Photo © Bruno Helbling
Photo © Bruno Helbling
Photo © Bruno Helbling
Photo © Bruno Helbling
Photo © Bruno Helbling
Photo © Bruno Helbling
Photo © Bruno Helbling
Photo © Bruno Helbling
Photo © Bruno Helbling
Photo © Bruno Helbling
Photo © Bruno Helbling
Photo © Bruno Helbling
Photo © Bruno Helbling
Photo © Bruno Helbling
Photo © Bruno Helbling
Photo © Bruno Helbling
Photo © Bruno Helbling
Photo © Bruno Helbling
Photo © Bruno Helbling
Photo © Bruno Helbling
Photo © Bruno Helbling
Photo © Bruno Helbling
Photo © Bruno Helbling
Photo © Bruno Helbling
Photo © Bruno Helbling
Photo © Bruno Helbling
Photo © Bruno Helbling
© Bruno Helbling
Architects
gus wüstemann architects AG
Year
2017
Project Status
Built

Related Projects 

  • Gymnasium Schulstraße
    Kronaus Mitterer Architekten
  • GROHE Water Experience Center
    D’art Design Gruppe GmbH
  • Limmatquai 4
    Kästli Storen
  • Volksschule Erlaaer Schleife
    Kronaus Mitterer Architekten
  • Ortsdurchfahrt Domat/Ems
    Luminum GmbH

Magazine 

Other Projects by gus wüstemann architects AG 

2nd prize, Competition, New Housing Complex with Tower Affoltern
Zürich - Affoltern, Switzerland
Invited Competition, New Housing Complex Zypressenstrasse, Winterthur
Winterthur
Heuteil Bad Ragaz
Bad Ragaz, Switzerland
Bar 0815
Zürich, Switzerland
Allschwil School
Allschwil, Switzerland