Neubau Haus Raeber-Niederberger
Als die Bauherrschaft am südlichen Abhang der Rigi das Grundstück an der Lützelaustrasse 58 in Weggis entdeckte, erfüllte sich für sie ein langersehnter Traum. Die wundervolle Aussicht auf den Vierwaldstättersee und die Alpen sowie die optimale Ausrichtung des Grundstückes waren für sie wichtiger, als die wegen des steilen Geländes zu erwartenden Herausforderungen. Das wild bewachsene Grundstück und die traumhafte Lage beflügelte die Fantasie der Architekten. Es war klar, dass diese besondere Umgebung Teil des Wohngefühls sein musste. Das Haus sollte die Landschaft nicht dominieren, sondern trotz des trapezförmigen Baufeldes und der vom Gesetz bestimmten Dachform Teil des Ganzen werden. Aus diesen Vorgaben entstand ein «wie aus einem Block gehauener» Bau, der auf optimale Weise Teil der speziellen Umgebung wurde. Der glatte Fassadenputz und die mit farblosem Aluminium umrahmten Fenster unterstreichen die körperhafte Erscheinung des Hauses.
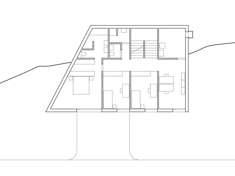
Von der Lützelaustrasse her gelangt man durch eine raumhohe Tür ins Entrée des Einfamilienhauses. Die grossflächige Verglasung des Eingangsbereichs trennt «Innen» und «Aussen» und macht den Übergang zu einem Erlebnis. Der glatte, antrazitfarbene Bodenbelag begleitet den Bewohner im ganzen Haus. Vom Eingangsbereich mit Garderobe führt eine breite Treppe ins Erdgeschoss mit Schlafzimmern und Nassräumen. Den Bereich Elternschlafzimmer betritt man über die Ankleide. Von hier gelangt man durch eine Schiebetüre in das Bad mit raumhohen Verkleidungen aus lichtgrauen Epoxidglasplatten. Die weissen Waschbecken und der antrazitfarbene Boden lassen den Bewohnern Raum für Farben. Durch eine zweite Schiebetüre betritt man vom Ankleideraum aus das Schlafzimmer, welches mit einem grossen Fenster einen imposanten Blick ins Grüne freigibt. Auf demselben Geschoss trennt eine Schrankfront den Korridor von drei möglichen Schlafzimmern, die man durch die Schrankfront betritt. Die Zimmer sind linear angeordnet.
Vom Erdgeschoss führt die Treppe in einen grosszügigen Wohnraum. Dem Wohnraum hangseitig angegliedert sind Küche und Bibliothek, während raumhohe und quadratische Fenster vom Wohnzimmer aus das wundervolle See- und Bergpanorama freigeben. Die Veränderungen der Tages- und Jahreszeiten können in diesem Raum genussvoll erlebt werden. Getrennt durch eine raumbreite, verschiebbare Verglasung gelangt man vom Wohnraum aus auf die gedeckte Terrasse mit Himmelatrium. Die wild bewachsene Umgebung mit Farnen, Büschen und Nagelfluhblöcken ist allgegenwärtig. Das Haus, der «behauene Block», verschmilzt mit der Umgebung und wird Teil des Bergsturzgebietes.
Text: August Keller, Schnieper Keller Architekten
Publikationen
2006 – Wohnrevue Nr. 1 Wohnort Weggis «Ein Haus als Bilderrahmen»
- Architects
- Schnieper Architekten
- Year
- 2003
- Project Status
- Built









