Neue Galerie New York: Museum for German and Austrian Art

1048 5th Avenue, New York, NY, USA
Photo © Adam Friedberg

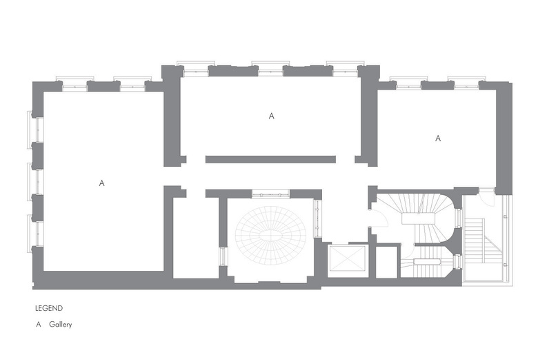
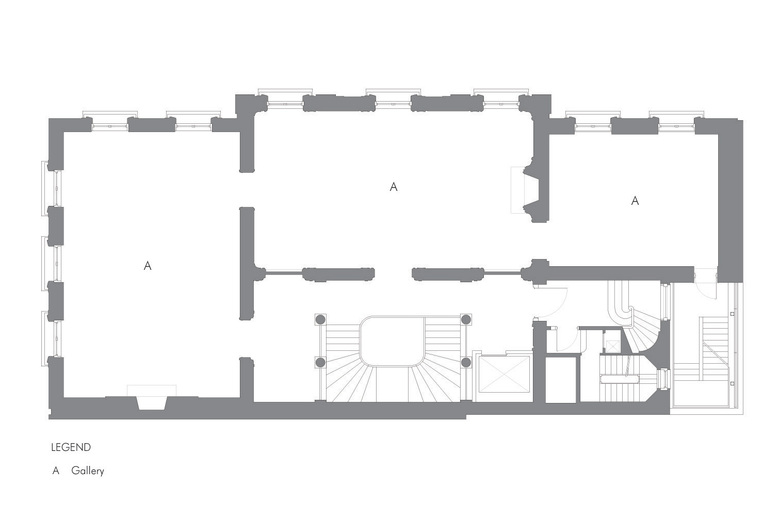
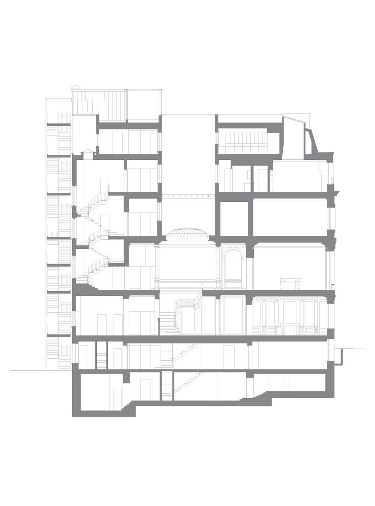
Selldorf Architects transformed a 1914 Carrere & Hastings building into the Neue Galerie New York. The design mandate called for an intimate setting in which to view a diverse collection of fine and decorative arts. Equally important to both architect and client was the uncompromising restoration of historical elements despite complex but necessary structural and mechanical modifications. The program included all facilities and improvements required for a contemporary museum, such as a large capacity elevator, a precisely calibrated climate-control system, sophisticated lighting, and audio and security systems. Individual floors required significant restoration and were then adapted to accommodate the needs of a museum, including a café, bookstore, coatroom, design shop and reception area on the first floor; gallery space on the second and third floors; administrative offices on the fourth floor; a conservation laboratory on the fifth floor; and a lecture hall, public bathrooms, and a security center in the basement.

Photo © Todd Eberle
Photo © Todd Eberle
Photo © Todd Eberle
Photo © Todd Eberle
Photo © Todd Eberle
Drawing © Courtesy of Selldorf Architects
Drawing © Courtesy of Selldorf Architects
Drawing © Courtesy of Selldorf Architects
Drawing © Courtesy of Selldorf Architects
Architects
Selldorf Architects
Year
2001
Project Status
Built

Related Projects 

  • Gymnasium Schulstraße
    Kronaus Mitterer Architekten
  • GROHE Water Experience Center
    D’art Design Gruppe GmbH
  • Limmatquai 4
    Kästli Storen
  • Volksschule Erlaaer Schleife
    Kronaus Mitterer Architekten
  • Ortsdurchfahrt Domat/Ems
    Luminum GmbH

Magazine 

Other Projects by Selldorf Architects 

Brown University John Hay Library
Providence, RI, USA
Walden House
Edwards, CO, USA
Hauser & Wirth 18th Street
New York, NY, USA
The Clark: Museum Building
Williamstown, MA, USA
200 Eleventh Avenue
New York, NY, USA