Sanierung & Umbau Gemeindehaus Lauterbrunnen
Lauterbrunnen, Switzerland
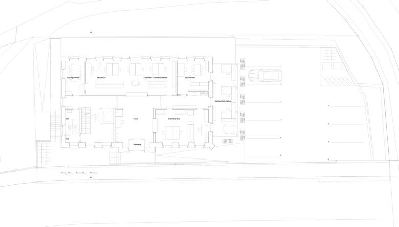
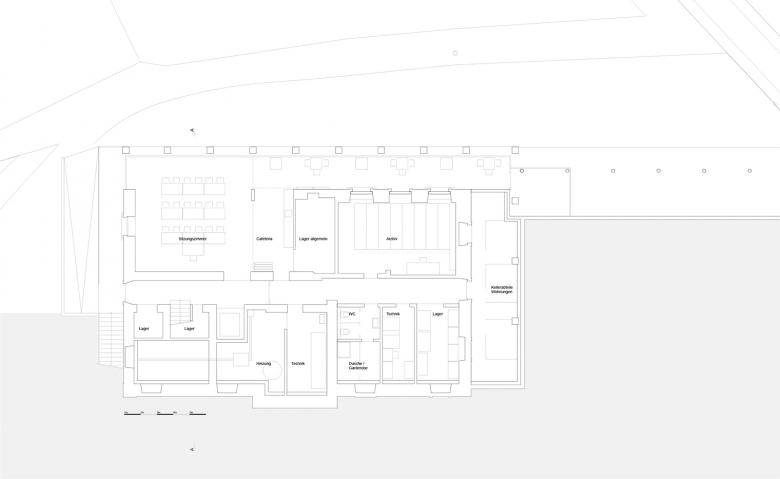
Das 1894 im klassischen Stil erbaute ehemalige Hotel Adler im Zentrum von Lauterbrunnen wurde seit 1958 schrittweise zum Gemeindehaus mit Wohnungen umgenutzt. Nach über 50 jähriger Nutzungs- und Betriebsdauer präsentierte sich das Gebäude in seiner Grundstruktur zwar als gesund, im Bereich der gesamten Innenausbauten und der Installationen jedoch als hochgradig sanierungsbedürftig. Auch die bestehende Raumaufteilung entprach nicht mehr den Bedürfnissen einer zeitgemässen Verwaltung. Aus diesem Grund entschied sich die Gemeinde nach einem genauen Gebäudecheck einen Studienauftrag unter mehreren Architektenteams zu veranstalten, um einen nutzungstauglichen Projektentwurf für die Gesamtsanierung des Gemeindehauses zu erhalten. Das Projekt umfasste eine sanfte aber tiefgreifende Instandstellung der Gebäudestruktur. Mittels eines kleinen Anbaus auf der Südseite kann die Verwaltungsnutzung (26 Arbeitsplätze und eine Cafeteria) auf den unteren 3 Geschossen konzentriert werden, so dass in den 2 oberen Geschossen neu 6 Wohnungen angeordnet werden können. Diese Zusatznutzungen garantieren langfristig die Tragbarkeit der Investitionen.
Die Sanierung erfolgte im MINERGIE-Standard und unter der Berücksichtigung von ökologischen Grundsätzen im Bauprozess und der Konstruktions- und Materialwahl. Es wurde ein Ausbaustandard angestrebt, welcher den betriebswirtschaftlichen Anforderungen an eine nachhaltige Bewirtschaftung Rechnung trägt. Die gesamte Planung und Realisierung erfolgte in enger Zusammenarbeit mit der kantonalen Denkmalpflege; dadurch konnte eine fachgerechte Sanierung und teilweise auch Rekonstruktion von verlorengegangenen Bauteilen sichergestellt werden.
Projekt-Risiken wurden in enger Zusammenarbeit mit der Bauherrschaft, den Behörden, den Fachplanern sowie den beteiligten Unternehmern frühzeitig registriert und bewertet. Zeitgleich wurde ein Massnahmenplan zur Risikoreduktion erstellt, welcher laufend aktualisiert und in den Projektplan integriert worden ist.
- Architects
- Ernst Gerber Architekten + Planer AG
- Year
- 2011
- Project Status
- Built
- Client
- Einwohnergemeinde Lauterbrunnen
Related Projects
Magazine
-
-
Building of the Week
The Three-Body Problem: Trapped in a Wave Sandwich
Eduard Kögel, Scenic Architecture Office | 13.04.2026 -














