Umbau Hochstudhaus zu Musikerhaus, Künstlerhaus Boswil

Eingangshalle, offen bis unters Dach, mit Rezeption
Photo © Gian Salis Architektur

Das ehemalige Sigristenhaus von Boswil, ein einfach gebautes, jedoch durch frühere Umbauten verschachteltes, denkmalgeschütztes Hochstudhaus durften wir umbauen zu einem hellen luftigen multifunktionalen Künstlerhaus. Dabei haben wir konsequent mit Holz gearbeitet in einer jahrhundertealten Haltung im ökonomischen Umgang mit Baumaterial: Fichte für die Tragstruktur, Tanne für den Innenausbau, Hagenbuche für die Möbel. Das alte rauchgeschwärzte Holz wurde nur gewaschen, die abgewetzten Bodendielen gehobelt und wieder eingebaut. Je dunkler das Holz, um so älter ist es.

Das ehemalige Sigristenhaus von Boswil wurde um 1700 als einfaches Bauernhaus erstellt. Es bestand aus einem Wohntrakt in Bohlen-Ständer Bauweise und daran anschliessendem Tenn und Stall in einer Hochstudkonstruktion – eine archaische, für den Aargau typische, Firstständerbauweise. Das Haus wurde mehrmals stark umgebaut, so wurde beispielsweise die äusseren Kammern im Wohntrakt später angebaut und darüber das Dach angehoben, was zur geschwungenen Dachform geführt hat. Erhalten geblieben sind drei Hochstüde im Tenn. Es steht unter kantonalem Denkmalschutz.

Im Auftrag der Stiftung Künstlerhaus Boswil durften wir es nach einem gewonnenen Studienwettbewerb zum Künstlerhaus umbauen. Alle Einbauten aus dem 20. Jahrhundert wurden entfernt und die rohe alte Struktur freigelegt. Nach einer genauen Analyse vom Bestand wurden die neuen Nutzungen dort eingeplant, wo sie am besten in die alte Struktur passen: Im hohen Dachgeschoss entstanden unter der erhaltenen alten Dachkonstruktion zwei Proberäume mit optimierter Akustik für Musik-Proben. Diese werden jeweils giebelseitig optimal belichtet, im grossen Saal durch eine vollflächige Verglasung hinter Holzlamellen, im kleinen Saal durch 7 Fenster, wobei 3 in Abstimmung mit der Denkmalpflege neu erstellt werden durften. So waren in der Dachfläche keine neuen Fenster nötig. Eine Blickachse durch den ganzen Dachraum verbindet die Räume. In den alten Kammern im Obergeschoss sowie im Heustock wurden 7 Gästezimmer mit je eigenem Bad erstellt, wobei die Decken höhergesetzt wurden um eine genügende Raumhöhe zu erreichen. Und in den alten Täfer-Stuben im Erdgeschoss entstanden Büroräume, wobei die Täfer ausgebaut, dahinter gedämmt und dann die Täfer wieder eingebaut wurden. In den Ställen entstanden Werkstatt sowie Lager. Im neuen Lichtdurchfluteten, wie eine Gartenlaube wirkenden Anbau Ost – anstelle eines Anbaus aus den 80er Jahren – entstand ein Sitzungszimmer. Erschlossen werden all diese Räume neu mit Lift und einer zentralen Treppe im ehemaligen Tenn, wo alle im 20. Jh. eingezogenen Böden radikal ausgeräumt wurden und so eine imposante Halle entstand. Diese ist geprägt von der Hochstudkonstruktion, welche beidseitig der Treppe über die ganze Höhe bis in den First erlebbar wird. In der Bohlen-Ständerwand zu den Büroräumen konnte ein Feld ausgeschnitten werden, dort befindet sich nun die Rezeption und zentrale Empfangstheke vom Künstlerhaus. Durch ein vorgefundenes Dachziegelfenster fällt ein über den Tag wandernden Sonnenfleck in die Halle und belebt und belichtet diese. Ebenso fällt Licht durch das geöffnete Tenntor und durch das lichte Sitzungszimmer gegenüber, so wurde aus dem ehemals dunklen Tenn ein lichtdurchflutete Halle. Raum-Nischen und Sichtbezüge machen den Raum zu einem attraktiven Pausen- und Aufenthaltsraum wo auch informelle Treffen stattfinden könne. Weitere neue Sicht- und Lichtachsen geben dem Haus eine innere Grosszügigkeit.

Da die Fassaden aussen in guten Zustand waren, wurden diese nur gereinigt und innenseitig mit einer neuen Tragstruktur verstärkt und gedämmt und teils die alten Täfer wieder eingebaut, teils neu vertäfelt. Hinter den alten Fenstern wurden auf der Innenseite neue Isolierglas-Fenster eingebaute. Einzig an der Nordfassade und dem Anbau Ost, welche grosszügig Verglast und mit Holzlamellen zu ruhigen Flächen zusammengefasst wurden, ist der Umbau von aussen erkennbar. Das ganze Haus musste auf neue Fundamente gestellt werden – zuvor lagen die Holzbalken teils direkt auf der Erde. Der neue Liftschacht sowie neue steife Platten in den Aussenwänden stellen die Aussteifung sicher. Die alten Bohlen-Ständer-Wände wurden wo möglich sichtbar gelassen und nur mit einer weichen Bürste abgewaschen. Entsprechend der Nutzung waren hohe Anforderungen an Schallschutz und Brandschutz gestellt. Danke einem objektspezifischen Brandschutzkonzept wurden auch im vertikalen Fluchtweg hölzerne Oberflächen möglich.
Die alte Dachkonstruktion war klar unterdimensioniert, darum wurde darüber eine die heutigen Anforderungen an Wärmeschutz und Tragstruktur erfüllende Dachkonstruktion erstellt, welche auf der alten Auflastet. Dabei wurde die bestehende Lastabtragung beibehalten und wo nötig verstärkt, so tragen die alten Hochstüde auch die neue Firstpfette. Es entsteht eine selbstverständliche Symbiose zwischen der bestehenden Tragstruktur und den Ertüchtigungsmassnahmen. Beispielsweise wurden im Vordachbereich die neuen, entsprechend höher liegenden Sparren mit kleinen Pföstli auf die alten Pfetten abgestützt, gleichartig wie die alten Sparren aufgeständert waren auf den Fusspfetten. Gedeckt wurde das Dach mit den alten Biberschwanzziegeln, wobei keine Aufbauten oder Abluftrohre die imposante geschwungene Dachfläche stören.

frei gespielter Hochstudpfosten in Einganshalle
Photo © Gian Salis Architektur
neue Treppe aus Schwarzstahl auf alter Holzkonstruktion
Photo © Gian Salis Architektur
Blickachse im Dach, neue Treppe zwischen Hochstudkonstruktion
Photo © Gian Salis Architektur
kleiner Saal
Photo © Gian Salis Architektur
grosser Saal
Photo © Gian Salis Architektur
Gästezimmer in alter Kammer
Photo © Gian Salis Architektur
Gästezimmer in alter Kammer
Photo © Gian Salis Architektur
Gästezimmer im ehemaligen Stall
Photo © Gian Salis Architektur
Sitzungszimmer im Gartenanbau
Photo © Gian Salis Architektur
Büroräume in ehemaligen Täferstuben
Photo © Gian Salis Architektur
Ensemble Hochstudhaus, Gästehaus, Alte Kirche
Photo © Gian Salis Architektur
Ansicht Süd
Photo © Gian Salis Architektur
Eingang im ehemaligen Tenn
Photo © Gian Salis Architektur
Vordach mit aufgeständerten neuen Sparren
Photo © Gian Salis Architektur
Anbau Ost
Photo © Gian Salis Architektur
Ansicht vom Garten
Photo © Gian Salis Architektur
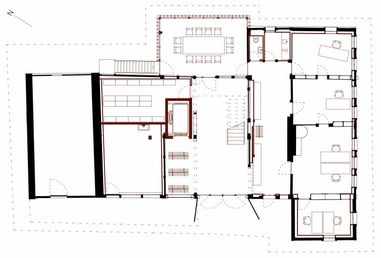
Grundriss EG mit Eingang, Büro, Sitzungszimmer und Werkstätten
Drawing © Gian Salis Architektur
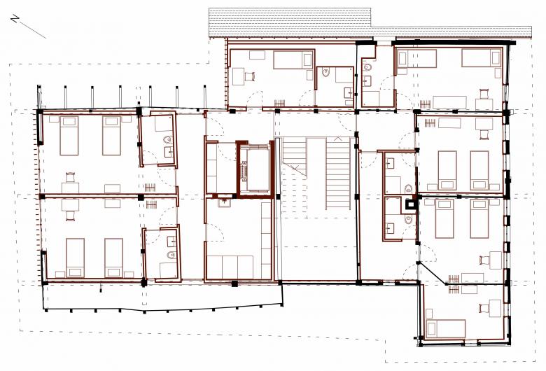
Grundriss Obergeschoss mit Gästezimmern
Drawing © Gian Salis Architektur
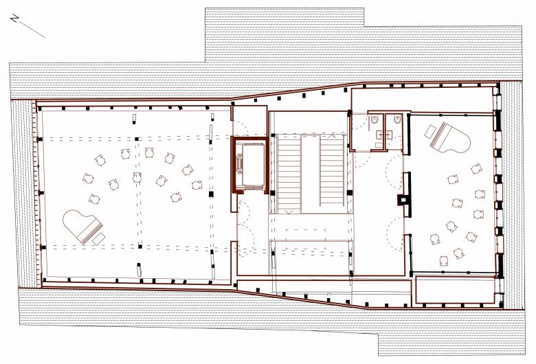
Grundriss Dachgeschoss mit kleinem und grossem Saal
Drawing © Gian Salis Architektur
Schnitt durch Eingangshalle im ehemaligen Tenn
Drawing © Gian Salis Architektur
Architects
Gian Salis Architektur GmbH
Year
2021
Project Status
Under Construction
Client
Stiftung Künstlerhaus Boswil
Team
Holzbau- und Brandschutzingenieur: Makiol Wiederkehr; Beinwil am See, Bauingenieur: HKP Bauingenieure; Zürich, Bauphysik: BWS Bauphysik AG; Winterthur, Bauleitung: Hüsser + Partner Architekten; Muri, Umgebung: Jane Bihr – de Salis Landschaftsarchitektin BSLA; Kallern, Denkmalpflege: Kantonale Denkmalpflege Aargau; Philipp Schneider und Reto Nussbaumer, Visualisierungen: Tom Schmid; Schaffhausen

Related Projects 

  • Gymnasium Schulstraße
    Kronaus Mitterer Architekten
  • GROHE Water Experience Center
    D’art Design Gruppe GmbH
  • Limmatquai 4
    Kästli Storen
  • Volksschule Erlaaer Schleife
    Kronaus Mitterer Architekten
  • Ortsdurchfahrt Domat/Ems
    Luminum GmbH

Magazine 

Other Projects by Gian Salis Architektur GmbH 

Stampflehm-Gewölbe
Zürich, Switzerland
Berufsschule Sololthurn
Foyer, Künstlerhaus Boswil
Boswil, Switzerland
Wohnsiedlung Kronenwiese
Wohnhaus am Hang
Wyhlen, Germany