Umbau / Neubau Alterswohnungen Storchen

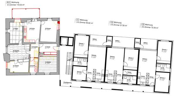
Im Zentrum des Gesamtkonzeptes stand die Neunutzung und Sanierung der Liegenschaft Storchen. Das markante Erscheinungsbild sollte erhalten werden, d.h. die neuen Ergänzungsbauten sollten die besondere Stellung des Storchens respektieren bzw. noch akzentuieren. Damit dies erreicht werden konnte, wurden die nicht erhaltenswerten und ohnehin stark sanierungsbedürftigen übrigen Gebäude auf dem Gesamtareal abgebrochen und der Storchen von den Anbauten befreit.

Anstelle des Ökonomiegebäudes wurde ein Neubau mit 9 Alterswohnungen erstellt. Der Storchen und diese Alterswohnungen sind miteinander erschlossen. Im Erdgeschoss des Storchens wurde ein Bistro eingebaut, im 1. und 2. Obergeschoss wurde jeweils eine 4 Zimmer-Wohnung eingebaut.

Die ganze Anlage wurde mit zwei Wohnhäusern mit je 8 Eigentumswohnungen ergänzt. Im Zentrum der Anlage wurde eine Unterflureinstellhalle für alle Häuser errichtet.

Architects
Oechsli + Partner
Year
2007

Related Projects 

  • Gymnasium Schulstraße
    Kronaus Mitterer Architekten
  • GROHE Water Experience Center
    D’art Design Gruppe GmbH
  • Limmatquai 4
    Kästli Storen
  • Volksschule Erlaaer Schleife
    Kronaus Mitterer Architekten
  • Ortsdurchfahrt Domat/Ems
    Luminum GmbH

Magazine 

Other Projects by Oechsli + Partner 

Neubau Alterswohnungen
Schleitheim, Switzerland
Umbau Vordergasse 6/8
Schaffhausen, Switzerland
Umbau Einfamilienhaus
Stetten, Switzerland
Neubau privates Wohnhaus
Nussbaumen, Switzerland
Neubau zwei Einfamilienhäuser
Stein am Rhein, Switzerland