Umbau und Aufstockung Einfamilienhaus

Photo © Kathrin Schulthess

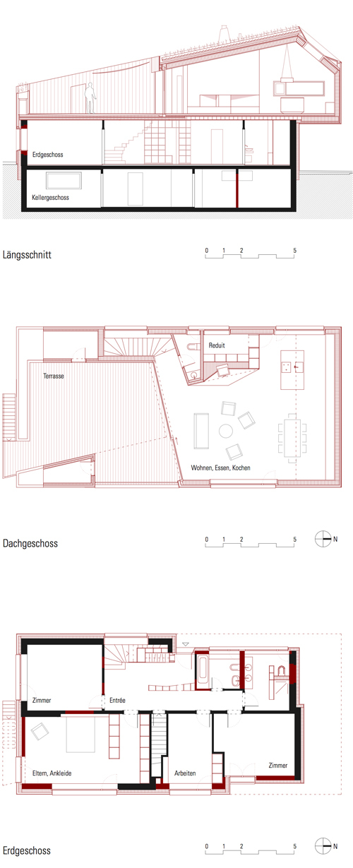
Das Haus aus den 60er Jahren wurde mit einer Dachaufstockung den Anforderungen der neuen Eigentümer angepasst. Der Aufbau in Holzelementbauweise bietet einen grossen Wohn-, Ess- und Kochbereich sowie eine vor Einsicht geschützte Terrasse. Im Gegensatz zum Bestand ist das Haus nun giebelständig. Das neue Volumen ist asymmetrisch und greift über die Fassadengestaltung bis hinunter in den Bestand. Die Kammern des Erdgeschosses wurden zu Schlafräumen und Entrée umgebaut.

Lignum, Broschüre 13, 03/2015

Umbauen und Renovieren, 01/2013

Umbauen und Renovieren, 03/2011

Photo © Kathrin Schulthess
Photo © Kathrin Schulthess
Photo © Kathrin Schulthess
Photo © Kathrin Schulthess
Photo © Kathrin Schulthess
Photo © Kathrin Schulthess
Drawing © Hörler Architekten
Photo © Kathrin Schulthess
Photo © Kathrin Schulthess
Photo © Kathrin Schulthess
Architects
Hörler Architekten
Year
2010
Project Status
Built

Related Projects 

  • Gymnasium Schulstraße
    Kronaus Mitterer Architekten
  • GROHE Water Experience Center
    D’art Design Gruppe GmbH
  • Limmatquai 4
    Kästli Storen
  • Volksschule Erlaaer Schleife
    Kronaus Mitterer Architekten
  • Ortsdurchfahrt Domat/Ems
    Luminum GmbH

Magazine 

Other Projects by Hörler Architekten 

Neubau Ferienhaus
Lumbrein, GR, Switzerland
Neubau Demenzhaus+
Arlesheim, BL, Switzerland
Neubau Seniorenwohnungen Teufen
Teufen, AR, Switzerland
Umbau und Erweiterung Bifertenhütte
Brigels, GR, Switzerland
Neubau Alterszentrum Saanen
Saanen, BE, Switzerland