Umbau und Erweiterung Beschäftigungsgebäude Ilgenpark

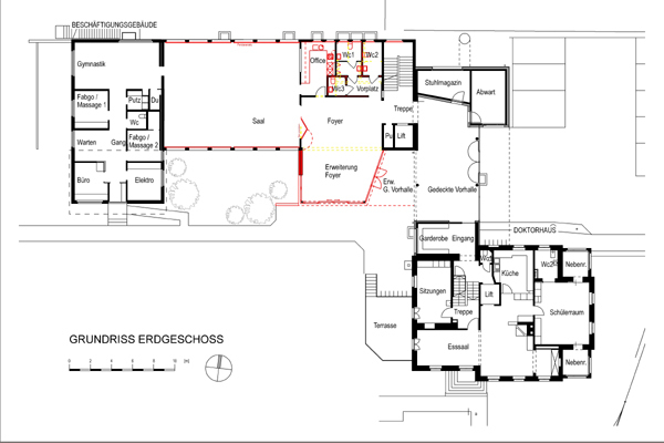
Der ILGENPARK in Ramsen ist ein Wohn- und Beschäftigungsbetrieb für behinderte erwachsene Menschen. Die räumliche Situation im Beschäftigungsgebäude genügte den heutigen Anforderungen nicht mehr. Zudem mussten alle Installationen, die Küche, die Nasszellen sowie die Fenster neu gemacht werden. Um der Platznot gerecht zu werden, wurde ein neues Foyer mit darüber liegender Terrasse erstellt. Der Anbau fügt sich in die bestehende Situation ein und öffnet sich mit einer grossen Fensterfront Richtung Garten. Neben den neuen Einbauten und Installationen wurde das Beschäftigungsgebäude sanft renoviert.

Architects
Oechsli + Partner
Year
2015
Project Status
Built

Related Projects 

  • Moos
    playze
  • Reiters Reserve Premium Suiten
    BEHF Architects
  • Erweiterung und Instandsetzung Hallenbad Altstetten
    MIYO Visualisierung
  • Neubau von fünf Einfamilienhäusern
    Bäumlin+John AG
  • The Forge in der 105 Sumner Street in London
    Kiefer Klimatechnik GmbH

Magazine 

Other Projects by Oechsli + Partner 

Neubau Alterswohnungen
Schleitheim, Switzerland
Umbau Vordergasse 6/8
Schaffhausen, Switzerland
Umbau Einfamilienhaus
Stetten, Switzerland
Neubau privates Wohnhaus
Nussbaumen, Switzerland
Neubau zwei Einfamilienhäuser
Stein am Rhein, Switzerland