Universität Zürich Institutsgebäude

Plattenstrasse, Zürich, Switzerland

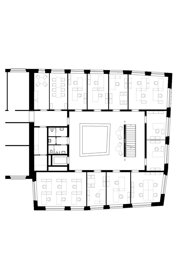
Die Erweiterung des Institutsgebäudes der wirtschaftswissenschaftlichen Fakultät an der Plattenstrasse lehnt sich an und fügt sich ein. Die funktionale Einheit, die räumliche Enge und der historische Kontext verlangen den Zusammenbau. Die ortsbauliche Situation belässt aber Interpretationsspielraum für eine Setzung eines Volumens, das selbständig den Umraum regelt.

Die leicht geknickte Baulinie zwischen der Plattenstrasse 14 und 26 wird im Volumen aufgenommen und verlängert die heutigen Versatzstücke zu einer stärker lesbaren Bauflucht.

Mit der Setzung eines sehr kompakten und auch tiefen Baukörpers wird ein grösserer Abstand zum Gebäude Plattenstrasse 26 gefordert. Dieser neue Stadtraum entwickelt sich in seiner Ausrichtung quer zum Strassenraum und vermittelt von der übergeordneten Plattenstrasse zum Phönixweg und vervollständigt damit die feinräumliche Vernetzung.

Die thematisch wiederholte Knickung in den Fassaden bewirkt eine fein wahrnehmbare Modulierung des Volumens; als massstäbliche Reaktion auf Wegnetzfigur und disperser Umgebungsstruktur.

Die leichte Expressivität der Fassade infolge der geschosshohen Stülpung ist eine äussere Ankündigung auf die innere Treppung des Lichtturmes.

Das neue Institutsgebäude changiert mit seinen vom Altbau freigestellten Attika zwischen skulpturalem Objekt und integriertem Stadtkörper in angenehm durchgrünten Hochschulquartier.

Architects
Leuppi & Schafroth Architekten
Year
2011
Project Status
Under Construction

Related Projects 

  • Gymnasium Schulstraße
    Kronaus Mitterer Architekten
  • GROHE Water Experience Center
    D’art Design Gruppe GmbH
  • Limmatquai 4
    Kästli Storen
  • Volksschule Erlaaer Schleife
    Kronaus Mitterer Architekten
  • Ortsdurchfahrt Domat/Ems
    Luminum GmbH

Magazine 

Other Projects by Leuppi & Schafroth Architekten 

Neubau Rütiwiesweg
Zürich, Switzerland
Villa Thuja
Boppelsen, Switzerland
Erweiterung Volksschule Stapfenacker
Bern, Switzerland
Fussgänger und Fahrrad Brücke
Kiew, Ukraine
Neubau Betreuungsgebäude Aemtler
Zürich-Wiedikon, Switzerland