Urbanización en desnivel: pasaje Arenys-Fastenrath
Barcelona, Spain
Nuevo espacio público: Pasaje de nueva creación, comprendido entre las calles de Fastenrath (nº43) y Arenys (nº56-58), entre tres bloques de viviendas realizadas por estudio de arquitectura Fitarq S.L.
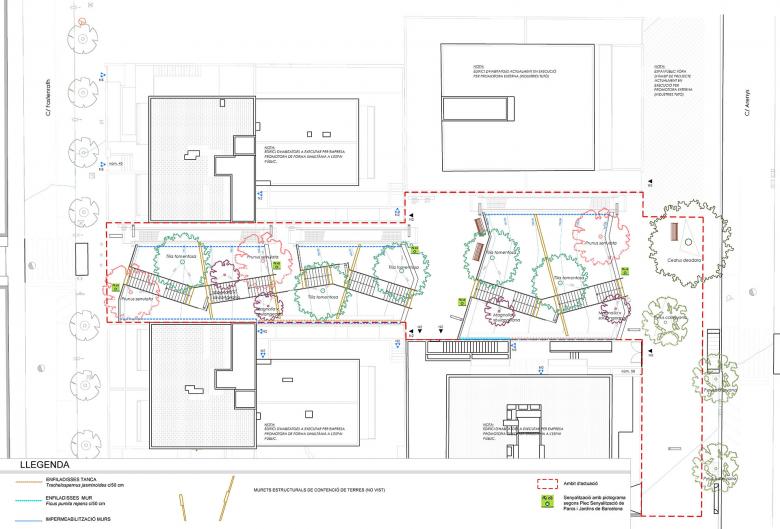
El objeto del proyecto es la definición de las obras correspondientes a la nueva urbanización del espacio público para permitir la comunicación entre las calles Fastenrath y Arenys con la construcción de nuevas escaleras peatonales y la instalación de escaleras mecánicas que dan acceso a las plataformas o grandes rellanos intermedios, en uno de los cuales se sitúan las entradas y salidas de los edificios de vivienda laterales.
La propuesta diseñada para conectar mediante un pasaje peatonal el fuerte desnivel entre las calles Fastenrath y Arenys, se puede explicar desde la formación de dos grandes parterres vegetales proyectados entre los límites de la edificación y las escalas mecánicas. Estos parterres quedan atravesados por una línea en zigzag que define las escaleras peatonales cumpliendo los parámetros de accesibilidad.
Se proponen tres grupos de escaleras de entre 3 y 4 tramos de escaleras cada uno. Además, en previsión a los futuros accesos peatonales a las viviendas, se da forma a una plataforma intermedia como espacio de estancia y de accesos, que genera un gran mirador a media cota entre las dos calles. Además, fruto de la ubicación de los diferentes tramos de las escaleras, se ha definido una segunda plataforma que hace de rellano y zona de estancia, entre escaleras peatonales y escalas mecánicas.
Debido al desnivel a salvar entre las calles existentes, los taludes tienen una pendiente de 25 grados aproximadamente. Los parterres vegetales están formados por un prado florido y unas manchas de vegetación arbustiva, subarbustiva y herbácea, que acompañan al prado y proporcionan una estructura fija de las plantaciones. Una cuidada selección de especies, con alto contenido de flores de gran impacto visual, favorece la biodiversidad y son interesantes para la fauna. Se han seleccionado especies atractivas en otoño e invierno, que es cuando el prado no está tan florecido. De esta forma, complementarían las floraciones y la estructura del mismo.
Además, 16 árboles de diferente especie (tilos, magnolias, cerezos del Japón, perales y un cedro) y por tanto diferentes características y alturas, recorren todo el ámbito de proyecto formando un bosquecillo, desde la acera de la calle Arenys al último parterre a tocar la calle Fastenrath. Se han situado de forma que proyecten toda la sombra posible sobre las escaleras.
En un primer estadio, el prado y el resto de especies del talud serán los protagonistas, hasta que los árboles crezcan y den paso a un bosquecillo.
promotor: Quorania
superficie: 842 m2
- Landscape Architects
- LeA atelier | Landscape Ecology Architecture
- Year
- 2019-2021
- Project Status
- Under Construction
Related Projects
Magazine
-
-
Building of the Week
The Three-Body Problem: Trapped in a Wave Sandwich
Eduard Kögel, Scenic Architecture Office | 13.04.2026 -














