Wassererlebnispark und –ausstellung Gymnicher Mühle

Gymnicher Mühle, Erftstadt , Germany

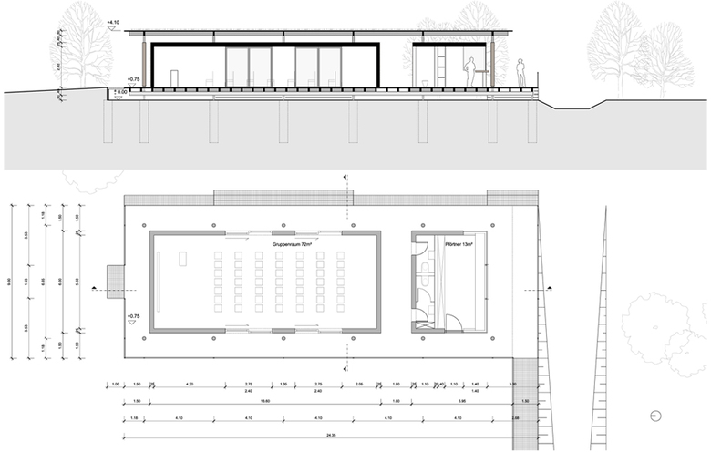
103 km ist die Erft lang von der Quelle bis zur Mündung in den Rhein. Auf ihrem Lauf durch Städte, Dörfer und Landschaften passiert sie ein interessantes Stück Deutschland. Themen wie die Quelle, Tagebau, mittelalterliche Burgen oder die Mündung in den Rhein bilden den Ausgangspunkt und Rahmen für den Wassererlebnispark an der Gymnicher Mühle. Dabei gilt es diese Themen in spannende und unterhaltsame Erlebnisbereiche zu „übersetzen“, andererseits aber auch den Ort an der Gymnicher Mühle und seinen besonderen Charakter zu erhalten. Die großzügigen Wiesenflächen, eingefasst mit einem Gehölzsaum und durchsetzt mit einzelnen sehr besonderen Bäumen wirkt wie ein schlafendes Kleinod. Deshalb entstand sehr früh das Konzept einzelne Erlebnisstationen an den Rand des Gehölzbestandes zu schieben und die großzügigen Wiesenflächen weitgehend frei zu halten. Verbunden werden diese Stationen über eine Wasserrinne, die durch verschiedene Bodenmaterialien als Barfußpfad genutzt werden kann. Die Erlebnisstationen sind Filterhaus/Quelle, Burg, Bodenschätze, Aussichtsturm, Teich, Mühle, Mündung, Wasserwerkstatt. Die Gebäude im Park dienen dazu, Möglichkeiten für pädagogisches Arbeiten mit den Gruppen zu ermöglichen und Sozial- bzw. Arbeitsräume für die Mitarbeiter bereit zu stellen. Sie sind sehr klar und reduziert gestaltet. Holz steht als Material im Vordergrund wodurch sich die Gebäude als eigenständiges aber zurückhaltendes Element in den Naturraum einfügen. Ein weiterer wichtiger Baustein des Nutzungskonzepts für das denkmalgeschützte Ensemble Gymnicher Mühle ist das Museum, das einen Großteil des Scheunengebäudes einnehmen soll. Der Raumeindruck des Scheunengebäudes mit seinem charakteristischen offenen Dachstuhl bleibt dabei erhalten. Grundidee ist es ein unaufgeregtes Nebeneinander von historischem Ensemble und moderner baulicher Ergänzung zu erreichen, ohne dass die Ablesbarkeit von Alt und Neu verloren geht.

Drawing © Schaller/Theodor
Photo © Schaller/Theodor
Photo © Schaller/Theodor
Photo © Schaller/Theodor
Architects
Schaller Architekten Stadtplaner BDA
Year
2014
Project Status
Built

Related Projects 

  • Wellness Bogn Sedrun
    WALTER BIELER AG
  • Moos
    playze
  • Reiters Reserve Premium Suiten
    BEHF Architects
  • Erweiterung und Instandsetzung Hallenbad Altstetten
    MIYO Visualisierung
  • Neubau von fünf Einfamilienhäusern
    Bäumlin+John AG

Magazine 

Other Projects by Schaller Architekten Stadtplaner BDA 

Nutzergenossenschaft Neue Bahnstadt Opladen
Leverkusen-Opladen, Germany
Nord-Süd Stadtbahn Köln, Haltestellen Chlodwigplatz
Köln, Germany
Altenberger Hof
Köln, Germany
3-fach Sporthalle
Eppelheim, Germany
Erweiterung Realschule / Neubau Grundschule
Pulheim, Germany