Wohn- und Geschäftshaus Neudorfstrasse
Steinhausen, Switzerland
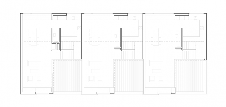
Das mitten im Dorfkern von Steinhausen stehende Gebäude beinhaltet im Erdgeschoss zwei kleinere Ladenlokale und in den oberen Geschossen drei strukturell identisch aufgebaute, dreigeschossige Wohneinheiten. Über einen gartenseitigen, gedeckten Aussenraum wird das Gebäude für die Wohnnutzung betreten. Eine einläufige Treppe führt in die Loggia im ersten Obergeschoss, von welcher aus die Wohneinheiten erschlossen sind. Der Wohn- und Essraum befindet sich als räumlicher Abschluss zuoberst unter dem asymmetrisch geneigten Dach. Der wohnungsinterne Aussenraum ist als Einschnitt im Dach ausgebildet und bildet räumlich eine seitliche Erweiterung für den Wohnraum. Das ganze Gebäude ist - in Erinnerung an den vormaligen Zimmereibetrieb auf dem Gelände - mit einer feingliedrigen Douglasholzfassade eingekleidet.
- Architects
- Albi Nussbaumer Architekten BSA/ETH/SIA
- Year
- 2004
- Project Status
- Built
- Client
- Privat
- Team
- Reto Blickisdorf
- Architekt
- Dettli Nussbaumer
- Bauleitung
- Horat Tomic
Related Projects
Magazine
-
-
Building of the Week
The Three-Body Problem: Trapped in a Wave Sandwich
Eduard Kögel, Scenic Architecture Office | 13.04.2026 -












