Zentrierung und Strukturbereinigung medius Klinik

Nürtingen, Germany
Photo © a+s

Um den gestiegenen Patientenzahlen und der medizinischen Entwicklung gerecht zu werden, wurde es erforderlich die medius KLNIK am Standort Nürtingen baulich zu erweitern.
Hierzu wurde die Gesamtzielplanung der Klinik in ein Masterplankonzept umge-
setzt, um die funktionalen Anforderungen in einem architektonisch abgestimmten
Gesamtkonzept umzusetzen.
Die Ausfühung erfolgte in 2 Förderanträgen.
Alle Maßnahmen wurden im laufenden Klinikbetrieb umgesetzt. Die Ausführung er-
folgte für den 2. Förderantrag als Generalplanerleistung für die arabzadeh+schnei-
der planungsgesellschaft erbracht.

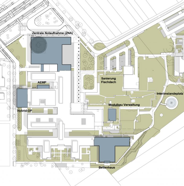
Zentrale Notaufnahme (ZNA) FA 1B
Fertigstellung 01/ 2025

AEMP FA 1A
Fertigstellung 11/ 2021

Hybrid-OP FA 1A
Fertigstellung 12/ 2020

Bettenhaus FA 1A
Fertigstellung 12/ 2021

Modulbau Verwaltung, Interimslandeplatz und Sanierung Flachdach
FA 1B

Photo © a+s
Visualization © a+s
Photo © a+s
Photo © a+s
Photo © a+s
Drawing © a+s
Architects
arabzadeh+schneider architekten
Year
2025
Project Status
Built
Client
medius KLINIKEN gGmbh Charlottenstr. 10 73230 Kirchheim unter Teck

Related Projects 

  • Gymnasium Schulstraße
    Kronaus Mitterer Architekten
  • GROHE Water Experience Center
    D’art Design Gruppe GmbH
  • Limmatquai 4
    Kästli Storen
  • Volksschule Erlaaer Schleife
    Kronaus Mitterer Architekten
  • Ortsdurchfahrt Domat/Ems
    Luminum GmbH

Magazine 

Other Projects by arabzadeh+schneider architekten 

Sanierung, Restaurierung und Umbau Rathaus Tübingen
Tübingen, Germany
Pflegeheim Mengen
Mengen, Germany
Neubau Kreissparkasse Esslingen
Esslingen
Fachklinik Höchsten
Bad Saulgau, Germany
Umbau und Sanierung Bestandshallen Bodanwerft
Kressbronn, Germany