Wohnhaus Ibergstrasse, Winterthur Iberg

Iberg
Photo © Jürg Zimmermann

Umbau eines denkmalgeschützten Bauernhauses und Scheunenausbau für eine sechsköpfige Familie | Projektierung und Ausführung: 2013-14 | Bauherrschaft: Privat | Architektur und Bauleitung: Jonathan Roider Architekt ETH, Zürich | Fotos: Jürg Zimmermann, Zürich | ausgezeichnet mit dem Architekturpreis Region Winterthur AW16

Photo © Jürg Zimmermann
Photo © Jürg Zimmermann
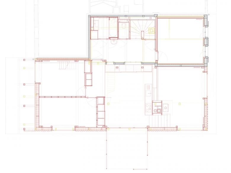
Drawing © Jonathan Roider
Drawing © Jonathan Roider
Visualization © Jonathan Roider
Photo © Jonathan Roider
Photo © Jonathan Roider
Photo © Jonathan Roider
Photo © Jürg Zimmermann
Year
2014
Project Status
Built

Other Projects by Roider Giovanoli Architekten ETH BSA SIA 

Mehrfamilienhaus Bergbach, Erlenbach
Erlenbach, Switzerland
Umbau Sophienstrasse, Zürich
Zürich, Switzerland
Genossenschaftliches Wohnhaus Nordstrasse, Zürich
Zürich, Switzerland
Wohnhaus am Waldrand, Effretikon
Effretikon
Zentrumsplanung und Neubau Alterswohnungen, Brütten
Brütten, Switzerland