Barmbek, Quartier 21, Baufeld 7, Haus 1 – 3

Andreas-Knack-Ring, Hamburg, Germany
Photo © Projektgesellschaft Quartier 21 mbH

Die auf dem ehemaligen Klinikgelände im Norden Hamburgs realisierten Stadtvillen sind Ergebnis eines städtebaulich-landschaftsplanerischen Ideen- und anschließenden Realisierungswettbewerbs für eines der Baufelder, auf dem ein Gebäudeensemble in Anordnung, Maßstab und Materialität Bezug auf die Parkanlage mit ihren historischen Klinikpavillons nimmt und einen von einer Tiefgarage unterfangenen Grünbereich als spezifische Adresse der Gesamtanlage umrahmt.

Mit innenliegendem Treppenhaus, um das sich Regelgeschosse unterschiedlich großer Wohneinheiten und auf Dachterrassen orientierte Penthauswohnungen gruppieren, ist die innere Organisation der fünfgeschossigen Stadtvillen differenziert und zugleich einfach. Die Ziegelfassaden nehmen Bezug auf das historische Parkensemble. Kompositorisch variierte feste und bewegliche Ausbauelemente geben den kubisch modellierten Baukörpern ein lebendiges Erscheinungsbild.

Aufgabe
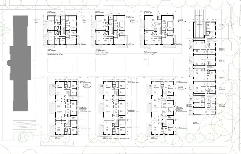
Baufeld 7, Haus 1-7

Realisierungswettbewerb
2007, 1. Preis

Planungsauftrag
Überarbeitung des Wettbewerbsentwurfes
LPH 1-4 mit Leitdetails
Realisierung Haus 1 – 3

Umfang
150 WE
14.000 qm GF

Auftraggeber
Projektgesellschaft Quartier 21 mbH

Drawing © Arge Trojan Trojan / Dietz Joppien
Drawing © Arge Trojan Trojan / Dietz Joppien
Photo © Arge Trojan Trojan / Dietz Joppien
Visualization © Arge TTP/DJA
Photo © TTP/DJA
Year
2008
Project Status
Built
Team
Klaus Trojan, Verena Trojan, Carl Wilkens, Andreas Schuldes, Joachim Wendt
Projektpartner
Dietz Joppien, Frankfurt

Other Projects by Trojan + Trojan 

Neugestaltung Bahnhofsvorplatz + ZOB
Coburg, Germany
Ehemaliges Diamalt Gelände
München Allach, Germany
Holsten Quartier
Hamburg, Germany
Gateway Gardens
Frankfurt am Main, Germany
Volksbank Reutlingen
Reutlingen, Germany