Alterssiedlung Feldblume Zürich

© farblabor
© farblabor
© farblabor
© farblabor
© farblabor
© farblabor
© farblabor
© farblabor
© dja
© dja
© dja
År
2010
Projektstatus
Built
Auftraggeber
Stiftung Alterswohnungen SAW
Landschaftsarchitektur
Studio Vulkan
Baumanagement
Bosshard und Partner Architekturbüro
Wettbewerb
2007, 1. Preis
Aufgabe
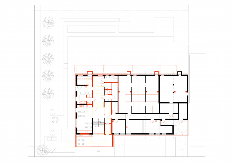
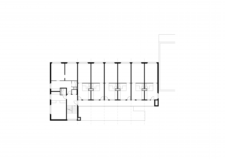
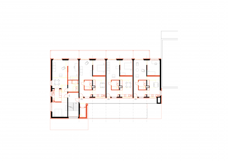
Gesamtsanierung der Alterssiedlung aus den siebziger Jahren mit Wohnungzusammenlegungen. Neue Gemeinschaftsbereiche. Balkone.
Programm
20 behindertengerechte 2.5 und 3.5 Zimmerwohnungen, Gemeinschafts- und Spitexraum, Wohlfühlbad, Hauswart-Werkstatt. Umsetzung behördlicher Auflagen: Gebäudehülle, Asbestsanierung, Erdbebensicherheit, Brandschutz, Hindernisfreiheit.

Andre projekter af Derendinger Jaillard Architekten 

Gemeindehaus Münsingen
Münsingen, Switzerland
Kantonsschule Ausserschwyz Nuolen
Nuolen, Switzerland
Bahnhof Zürich Altstetten
Zugang Bahnhof Herrliberg / Feldmeilen
Collège Principal de Pully