Kinderspital St.Gallen

© maaars
© maaars
© dja
© dja
© dja
År
2010
Projektstatus
Under Construction
Auftraggeber
Stiftung Ostschweizer Kinderspital
Spitalbau
Thomas Hardegger
Bauingenieur
AF Toscano
Haustechnik
Amstein + Walthert
Wettbewerb
2010, 2. Preis
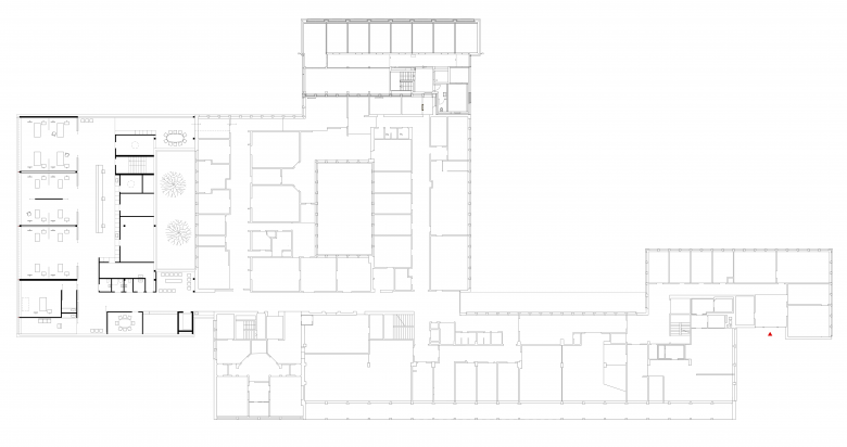
Aufgabe
Erweiterung des Kinderspitals für die Intensivpflegestation mit 5 1 bis 4-Bett-Zimmern, Empfang, Büros, Besprechungsräumen, Aufenthalt, Notfallzufahrt

Andre projekter af Derendinger Jaillard Architekten 

Gemeindehaus Münsingen
Münsingen, Switzerland
Kantonsschule Ausserschwyz Nuolen
Nuolen, Switzerland
Bahnhof Zürich Altstetten
Zugang Bahnhof Herrliberg / Feldmeilen
Collège Principal de Pully