Neubau Wohnhaus Neumarkt 5

Winterthur
Photo © Roland Bernath

Nach dem Brandfall vom 12.3.2012 des zweigeschossigen Vorgängerbaus konnten nach Wettbewerb und Volumenstudien im anspruchsvollen Kontext des Neumarkts ein Geschoss mehr realisiert werden

2012 Projektwettbewerb 1. Rang

Preisträger AW16

Photo © Roland Bernath
Photo © Roland Bernath
Photo © Roland Bernath
Photo © Roland Bernath
Photo © Roland Bernath
Photo © Roland Bernath
Photo © Roland Bernath
Photo © Roland Bernath
Photo © Roland Bernath
Photo © Roland Bernath
Photo © Roland Bernath
Photo © Roland Bernath
Photo © Roland Bernath
Photo © Roland Bernath
Photo © Roland Bernath
Photo © Roland Bernath
Photo © Roland Bernath
Photo © Roland Bernath
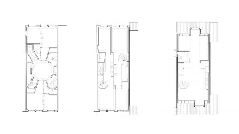
Von links nach rechts: Grundriss UG / EG / 1.OG
Drawing © KilgaPopp
Von links nach rechts: Grundriss 2.OG / 3.OG / DG
Drawing © KilgaPopp
Längsschnitt & Querschnitt
Drawing © KilgaPopp
Hoffassade
Drawing © KilgaPopp
Platzfassade
Drawing © KilgaPopp
År
2014
Projektstatus
Built
Kunde
Privat
Bauleitung
Widmer Partner

Andre projekter af KilgaPopp Architekten AG 

Stadthäuser
Winterthur
Wohnhaus Krokodil
Winterthur
Umbau und Erweiterung Halle 181
Winterthur
Sanierung Villa Büel
Winterthur
Neubau Wohnhaus mit Gewerbe am Bahnhof Töss
Winterthur