Street runners: Supporting infrastructure for the workforce of the supply chain
This project responds to the precarious conditions of urban delivery workers in Thessaloniki, proposing worker-centric infrastructure throughout the city. By integrating adaptable support spaces into the urban landscape, it enhances dignity, care and collective agency in last-mile logistics.
Urban delivery workers operate under rigid conditions, lacking infrastructure to support their needs. Unlike workplaces that offer flexibility, delivery workers must adapt the city itself into a workspace, often at the cost of their well-being. Informal delivery stands highlight the absence of basic amenities, rest areas, and social spaces. This project addresses the need for dedicated infrastructure, exploring how architecture can offer meaningful support and foster community rather than reinforce exploitation.
The project addresses the struggles of urban delivery workers in Thessaloniki, who endure unstable conditions without essential infrastructure. While many workplaces offer stability and flexibility, last-mile logistics workers must rely on the city itself as a makeshift workspace, often without sanitation, rest areas, or social spaces. To counter this, the project introduces interventions near delivery stands, informal gathering spots where workers pause between deliveries.
The design follows three strategies aimed at improving efficiency, safety, and collective empowerment. At the smallest scale, compact urban capsules provide restrooms, charging stations, and lockers, offering basic amenities. Their mobility allows adaptation to shifting delivery zones.
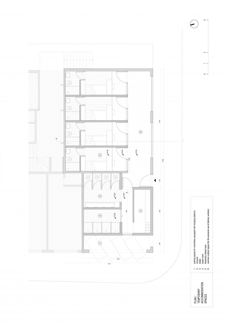
On a larger scale, vacant ground floors and apartments are repurposed into temporary rest spaces. These secure areas restore a sense of stability, offering privacy during breaks. Placed near key delivery stands, they bridge the gap between public and personal space.
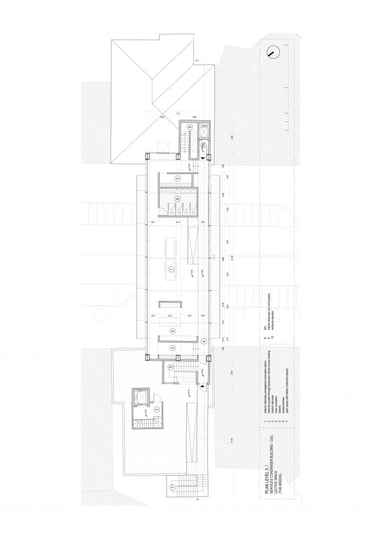
Finally, a delivery hub in the city center fosters social interaction and professional support. Located near a major delivery stand, it includes communal kitchens, showers, lockers, and transportation maintenance areas. More than a functional space, it builds worker solidarity, creating a shared environment.
Rather than imposing a fixed solution, the project emphasizes adaptability and responsiveness. By integrating architecture into the urban supply chain, it challenges the invisibility of this workforce, advocating for a city that supports—not exploits—those who keep it running. These spatial interventions promote a new urban framework prioritizing labor rights, autonomy, and dignity.
- Projektstatus
- Design



















