Umbau und Sanierung Vorstadt 13

Das Altstadtgebäude mit einem Verkaufslokal im Erdgeschoss und zwei Wohnungen in den oberen Geschossen musste infolge eines Brandes total saniert werden. Zudem entsprach die Erschliessung nicht mehr den heutigen Anforderungen der Feuerpolizei.

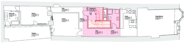
Es wurde ein komplett neues massives Treppenhaus im Zentrum des Hauses eingebaut. Angrenzend an den neuen Erschliessungskern wurden neue Nasszellen und Küchen angeordnet. Alle Installationen wurden neu gemacht und im 3. Dachgeschoss eine neue Gasheizzentrale eingebaut.

Die Struktur des Gebäudes blieb weitgehend erhalten.

Die gassen- und hofseitigen Räume wurden nur sanft saniert. Der Gewölbekeller musste statisch gesichert werden und wurde zu einem Veranstaltungs- / Verkaufraum ausgebaut.

Die Fassaden wurden neu gestrichen und die Fenster wurden ersetzt.

Die Farbgebung und die neue Fenstereinteilung wurden in Absprache mit der Denkmalpflege definiert

År
2010

Andre projekter af Oechsli + Partner 

Neubau Alterswohnungen
Schleitheim, Switzerland
Umbau Vordergasse 6/8
Schaffhausen, Switzerland
Umbau Einfamilienhaus
Stetten, Switzerland
Neubau privates Wohnhaus
Nussbaumen, Switzerland
Neubau zwei Einfamilienhäuser
Stein am Rhein, Switzerland