40 módulos de descanso para 4 apartamentos turísticos
Barcelona, Spain
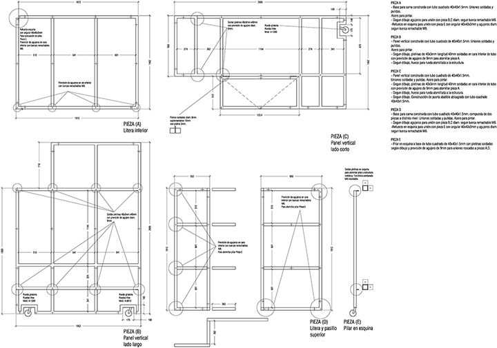
The commission was to tranform 4 dwellings of the same building into touristic apartments. The requirement to modify as less as possible the existing elements had an important influence to define the strategy which was focused in two aspects. Firstly, it came the desicion of where to locate both kitchens and bathrooms. They are all close to patios to get easier the existing sewage disposal. Secondly, the goal was to design a room module adaptable to each room of the apartment by different combinations. The modules are made in workshops and they include storage and beds as well as electric and lighting systems. The images show the first prototype in its place.
- Residential
- Collective Housing + Multiple Houses
- Apartment Buildings
- Hospitality
- Conversions + Extensions
- Lofts + Interiors
- Student Houses + Dormitories
- Hotels + Hostels + Guest Houses
- Architects
- Arquitectura-G
- År
- 2013
- Projektstatus
- Built
Relaterede projekter
Magasin
-
-
Ugens Bygning
The Three-Body Problem: Trapped in a Wave Sandwich
Eduard Kögel, Scenic Architecture Office | 13.04.2026 -














