Extension de la Caserne des Rives à Yverdon
Située sur la même parcelle que Collège des Rives, l’extension de la Caserne du SDIS régional du Nord vaudois s’inscrit dans la volonté d’étendre le centre de gravité de la ville en direction du lac et de faire vivre ce quartier. S’intégrant aux principes urbains du contexte bâti, elle reprend la forme urbaine donnée par les bâtiments environnants. Les aménagements extérieurs entre le collège et la caserne servent d’espace public et accueillent les différentes affectations extérieures liées à ces deux bâtiments.
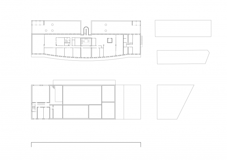
Le bâtiment accueille le site du Détachement de premier secours d’Yverdon-les-Bains ainsi que les services de la signalisation de la Police du Nord vaudois.
Pour répondre au mieux aux besoins de ces utilisateurs, la caserne est aménagée en deux parties : une halle tempérée proposant des espaces de grandes hauteurs (structure acier/béton) et une tête chauffée (structure béton) organisée sur 2 niveaux.
L’ensemble est revêtu d’une « peau » reliant les deux parties d’ouvrage dans un langage architectural commun donnant à lire un bâtiment unique et compact. L’expression architecturale sobre et rationnelle du bâtiment renvoie tant au caractère industriel du site qu’à l’affectation même d’une caserne de pompiers. La tôle perforée et les grandes ouvertures expriment l’usage du bâtiment
- Architects
- PONT12 architectes sa
- År
- 2020
- Projektstatus
- Built
- Kunde
- Commune d’Yverdon-les-Bains
- Ingénieur civil
- DIC SA
- Ingénieur CV
- Jakob Forrer SA
- Ingénieur E
- Thorsen Sàrl
- Ingénieur S
- Schumacher ingénierie SA
- Architecte paysagiste
- Pascal Heyraud Sàrl
- Ingénieur géotechnicien
- de Cérenville géotechnique SA
- Physique du bâtiment
- Estia SA
- Sécurité incendie
- Ignis Salutem SA
- Acousticien
- d’Silence acoustique SA
Relaterede projekter
Magasin
-
-
Ugens Bygning
The Three-Body Problem: Trapped in a Wave Sandwich
Eduard Kögel, Scenic Architecture Office | 13.04.2026 -















