Instandsetzung Baumeisterhäuser Rämistrasse
Rämistrasse/ Zeltweg, Zürich, Switzerland
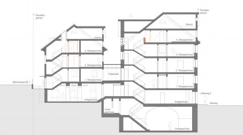
Die beiden Gebäude Rämistrasse 28 und Rämistrasse 30 / Zeltweg 2 – auch «Haus zum Pfauen» genannt – wurden 1837 im Zuge der Neubebauung nach der Schleifung der Schanzen als sogenannte Baumeisterhäuser erbaut. Nach mehreren Umnutzungen wurden die Gebäude von 1926 bis 2019 als «Musikhaus» von Jecklin und Musik Hug genutzt.
Das Gebäudeensemble ist im Inventar der Zürcher Denkmalpflege aufgeführt und aufgrund seiner Ausprägung und Lage denkmalpflegerisch und städtebaulich von Bedeutung. Zu den schutzwürdigen Elementen gehören nicht nur die Aussenfassaden und das Dach, sondern auch die Konstruktion mit tragenden Wänden, Decken und Böden, die Raumorganisation, die Erschliessung durch die Treppenhäuser sowie die Ausstattung wie Bodenbeläge, Stuckdecken und Täfer.
Die Räumlichkeiten wurden nun vorerst für eine Neuvermietung unter dem neuen Grundeigentümer mit einfachen Mitteln und ohne grosse bauliche Eingriffe aufgewertet und instandgesetzt. Insbesondere hat man die Oberflächen aufgefrischt, die Infrastruktur bezüglich der WC-Anlagen erneuert und Teeküchen eingebaut. Es ist vorgesehen, das Haus in zirka 10 Jahren einer Gesamtsanierung zu unterziehen. In der Zwischenzeit sollen das Erdgeschoss weiterhin für Verkaufsflächen und die Obergeschosse als Büroräumlichkeiten und Ateliers genutzt werden.
- Architects
- Andri Cajos Architekten AG
- År
- 2021
- Projektstatus
- Built
- Kunde
- Immofonds Asset Management AG
- Verwaltung
- Avobis Group AG, Zürich, vormals VERIT Immobilien AG
- Nutzung
- Büros und Ateliers Praxen
Relaterede projekter
Magasin
-
-
Ugens Bygning
The Three-Body Problem: Trapped in a Wave Sandwich
Eduard Kögel, Scenic Architecture Office | 13.04.2026 -















