Meerssen Maison de Ville / Maison Proosdij
Markt, Meerssen, Nederland
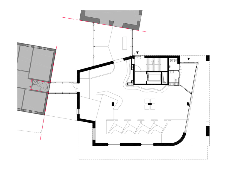
Phase 3 of the urban master plan for the historic center of Meerssen, developed in 1997, is now being realized. The different parts of this Master Plan as the extension of the marketplace, the realization of the Maison de Ville, with the Customer Contact Center of the municipality in conjunction with five apartments above and the apartment complex Nieuw Proosdij, located around the former, transformed monastery will be added to the already implemented plan components. The extension of the underground carparking phase 1 and the completion of the revitalized park, designed by landscape architect office Verbeek, are part of the final implementation of the Master Plan. This concludes a developement, which will make the center of Meerssen future-proof and adaptable to the ever-changing needs of the organism town. What was missing was the connection of the market square with the park in an urban structure, which allows the increased market square, as well as the enlarged Park to be embedded in an urban space frame. Coenen Sättele Architects, is responsible for the design and detailed final design of the Maison de Ville and the complex Maison Proosdij, including the garage and defined the contours of the design of public spaces.
Meanwhile, the building process of the Maison de Ville has been completed and the Customer Contact Center KCC will be ready to move into in June 2015. The implementation of the Maison Proosdij consisting of 19 residential units and a small commercial space, launched in November 2014, will be completed by the end of 2015, together with the design of the public spaces.
Maison Proosdij consists of three building volumes, which are connected to one another via a central hall. The entrance to the complex is located on the side of the enlarged market square, where also the public access to the underground parking is located at a prominent porch. The contours of the new building elements are oriented with respect to shape, profile and volume of the monastery, but speak in terms of architecture and materiality of each block a distinctive, own language. In the existing, partially demolished monastry two multi-storey townhouses are realized, one of which in the former chapel. The facades of the monastery are restored and only where necessary, adapted to the requirements of the new use. In the new wing 19 apartments are implemented on four levels, which are either geared to the park or to the market square. The entire complex keeps the memory of the old, in the cityscape of Meerssen charakteristik monastery alive, but at the same time due to the additions the ensemble creates a new significant character for the place between the monumental basilica and the beautiful park with historic trees. The expanded marketplace, framed by the construction of the Maison de Ville and the Maison Prosdij will make an important contribution to the new perception of the public space in the heart of Meerssen.
- Architects
- Coenen Sättele Architecten
- År
- 2017
- Projektstatus
- Built
Relaterede projekter
Magasin
-
-
Ugens Bygning
The Three-Body Problem: Trapped in a Wave Sandwich
Eduard Kögel, Scenic Architecture Office | 13.04.2026 -





















