Neubau Hort Kindergarten in Bilten
Bilten, Switzerland
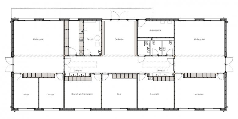
Der Neubau des eingeschossigen Gebäudes liegt inmitten eines Wohnquartiers und wird in die Umgebungsfläche des bestehenden Kindergartens eingefügt. Der gedeckte Eingang ist zum Spielplatz hin ausgerichtet und schliesst den Aussenraum des Kindergartens räumlich ab. Der mittig angeordnete Eingangsbereich beherbergt die Garderoben. Über den innenliegenden und von oben belichteten Vorraum mit Zahnputzbereichen sind sämtliche Räume direkt erschlossen. Die symmetrische Grundrissstruktur ermöglicht es, die beiden Haupträume an die Gebäudeecken zu legen und zweiseitig zu belichten und die Gruppenräume direkt mit den Horträumen zu verbinden. Die zugehörigen pädagogischen Nutzungen wie DAZ, Logopädie und Leitungsbüro liegen dazwischen. Durch die Fluchtausgänge an den Stirnseiten konnte der ganze Bau als einheitliche Nutzungseinheit ohne Brandschutzanforderungen an die einzelnen Bauteile geplant werden. Der Neubau ist mit Holzelementen gebaut und mit einer hinterlüfteten vertikalen Holzschalung in vorvergrauter Fichte verkleidet. Die Höhengliederung der Fassade wird durch horizontale Metallbänder gezeichnet, was dem eingeschossigen öffentlichen Gebäude wieder eine klassische Fassadengliederung vermittelt. Die Flachdachfläche konnte für eine Photovoltaikanlage genutzt werden. Durch die knappe Bauzeit von vier Monaten war die Vorfertigung vorgegeben, damit der Kindergarten für den Schulstart rechtzeitig in Betrieb genommen werden konnte.
- Architects
- häberli heinzer steiger architekten
- År
- 2022
- Projektstatus
- Built
Relaterede projekter
Magasin
-
-
Ugens Bygning
The Three-Body Problem: Trapped in a Wave Sandwich
Eduard Kögel, Scenic Architecture Office | 13.04.2026 -









