Neugestaltung Dorfzentrum Lindenplatz
Lindenplatz 1, Gränichen, Switzerland
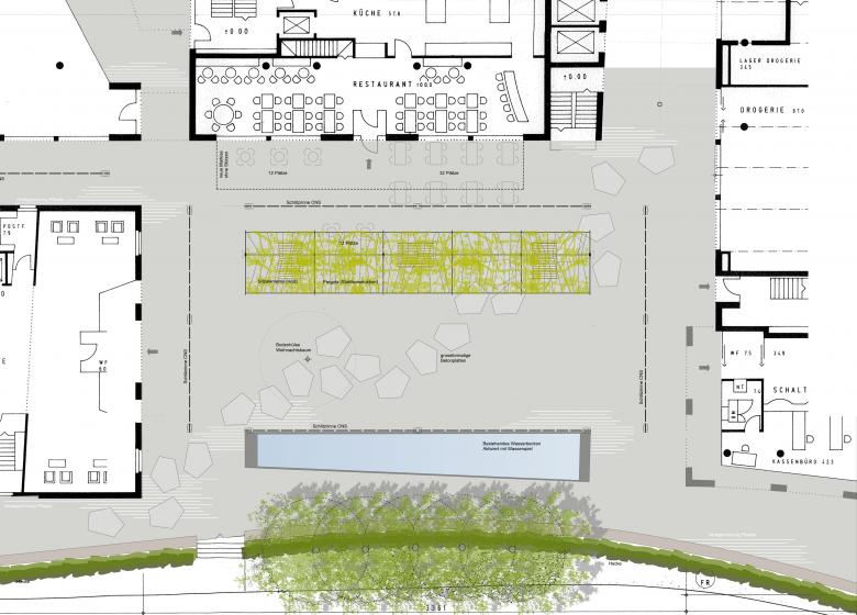
Der öffentliche Freiraum liegt zwischen Gemeindehaus, Bankgebäude und Gewerbeüberbauung. Er vermittelt an zentraler Lage eine repräsentative Ausstrahlung und ermöglicht eine vielseitige und freie Nutzungen für das Gewerbe wie zum Beispiel als Plattform für Ausstellungen, Wochenmarkt oder Info-Veranstaltungen.
Im Zuge der Sanierungsarbeiten der unterirdischen Tiefgarage wurde die Oberflächengestaltung überarbeitet und die Platzentwässerung optimiert. Die Fläche ist nun durchgehend mit einem einheitlichen Belag versehen und wird offen gehalten. Bündig eingelegte Betonplatten in freien Formen werden von einer Pflästerung in Onsernone-Naturstein umschlossen - sie begleiten den Besucher auf seinem Weg über den Platz.
Die Ausrichtung orientiert sich am ehemaligen Bachverlauf, der sich einst an dieser Stelle seinen Weg durch das Dorf gebahnt hatte. Eine Rankkonstruktion mit öffentlichen Sitzgelegenheiten dient dem Aufenthalt und weist dem Gartenrestaurant den Bereich für die Aussenterrasse zu.
- Landscape Architects
- Rosenmayr Landschaftsarchitektur GmbH
- År
- 2012
- Projektstatus
- Built
- Kunde
- Gemeinde Gränichen
- Team
- Consensus Baumanagement
- 1. Rang
- selektives Planerwahlverfahren
Relaterede projekter
Magasin
-
-
Ugens Bygning
The Three-Body Problem: Trapped in a Wave Sandwich
Eduard Kögel, Scenic Architecture Office | 13.04.2026 -










