Quintiles IMS - renovation of the IMS Healt Office in the heart of Milan
Starting from the historical standardization of the traditional offices, the project reinterprets the idea of the working spaces according to the fluidity of the contemporary society, characterized by unexpected relationships, informal experiences, unconventional and flexible locations.
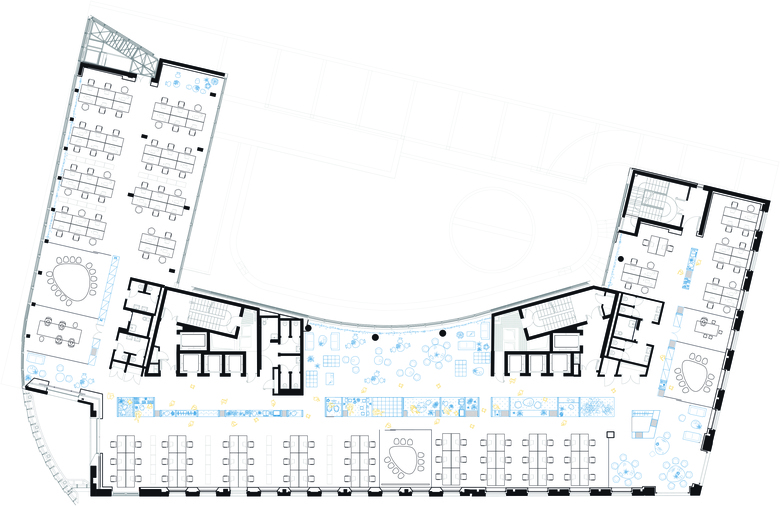
This is the starting point for the new 5000sqm offices refurbishment won by Laboratorio Permanente among a private competition organized by Healthcare for its new headquarters in Milan. Just in front of the Main Station, inside an outstanding pre-modern building, the new office spaces are distributed among five different floors, characterized by varied views on the city around.
A thick architectural edge designed along the traditional working stations has been conceived to host a complex program of functions. Common office services such as copy centres, telephone rooms, print stations are mixed along this edge, called the spine, with relax rooms, smart corners, meditation rooms, coffee corners, community indoor gardens, book crossing libraries, exhibition areas, mini kitchens and common refrigerators.
The variety of the functions will be harmonized by a continuous system of dark frames interrupted by white panels and glasses, a new smart and vibrant architecture inside the architecture itself.
- Architects
- Laboratorio Permanente
- År
- 2016
- Projektstatus
- Built
- Kunde
- Private
- Team
- Nicola Russi, Angelica Sylos Labini, Emanuela Forcolini, Luca Cozzani, Marco di Forenza
- Technological Systems Design
- Ph.D. Eng. Michele Angioletti











