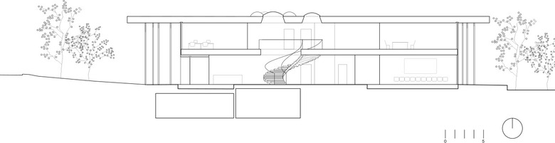
Siège international de la FIM (Fédération Internationale de Motocyclisme)
- Architects
- LOCALARCHITECTURE
- År
- 2016
- Projektstatus
- Built
- Kunde
- FIM - Fédération Internationale de Motocyclisme (International Motorcycling Federation)
Relaterede projekter
Magasin
-
-
Ugens Bygning
The Three-Body Problem: Trapped in a Wave Sandwich
Eduard Kögel, Scenic Architecture Office | 13.04.2026 -


















