Umbau und Renovation Mehrfamilienhaus von 1957
Das Mehrfamilienhaus wurde 1957 als Teil eines Ensembles, bestehend aus drei Häusern, die um einen parkähnlichen Innenhof gruppiert sind, errichtet. 1999 wurde das Haus bereits wärmetechnisch saniert. Bestandsteil der jetzigen Baumaßnahmen war einerseits die technische Sanierung und Erneuerung und anderseits die komplette Renovation aller inneren Oberflächen. In den zwei bestehenden Wohneinheiten wurde die Raumstruktur des Grundrisses grundsätzlich erhalten. Mit neuen Durchgangstüren erhielten die beiden Wohnungen jedoch eine neue offene Raumfolge, die ein modernes Raumgefühl behutsam im Bestand eingefügt hat. Zudem wurden die Bäder und die Küche modernisiert, in der ein Plattenbelag in Stil der 50er gewählt wurde.
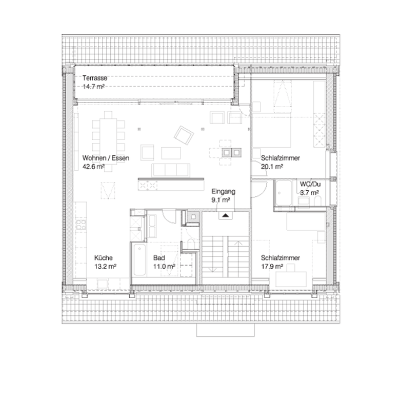
Das Dachgeschoss wurde zu einer vollwertigen Wohneinheit ausgebaut mit zwei neuen großen Dachgauben und einer neuen Terrasse. Die Möglichkeiten einer neuen modernen und offenen Raumgestaltung sind hier ausgeschöpft worden.
- Architects
- Forsberg Architekten AG
- År
- 2015
- Projektstatus
- Built













