ZDD Zentrum für Digitalisierung Düsseldorf
Münsterstraße, Düsseldorf, Germany
Auf dem Campus der Hochschule Düsseldorf hat RKW Architektur + aus Düsseldorf, eines der renommiertesten deutschen Architekturbüros, das Zentrum für Digitalisierung und Digitalität, kurz ZDD, gebaut. Mit einer Fassade aus glasierten Keramikbaguettes in verschiedenen Gelbtönen fügt sich der markante Kubus konsequent und harmonisch in die bestehende Umgebung mit den markanten Aluminiumfassaden der Campus-Neubauten und den historischen Ziegelbauten ein. Die sichere und wärmebrückenfreie Befestigung der vorgehängten hinterlüfteten Fassade (VHF) ermöglicht Schöck Isolink Typ F. Darüber hinaus konnte damit auch die Dämmstärke reduziert werden – das verschaffte den Architekten zusätzlichen Raumgewinn im Inneren.
2018 bündelte die Hochschule Düsseldorf ihre Fakultäten im neuen Campus Derendorf. Ergänzend dazu sollte ein neues Gebäude entstehen, das die Themen Digitalisierung und Innovation fördert und eine bessere Vernetzung der verschiedenen Schwerpunkte der Hochschule ermöglicht – das Zentrum für Digitalisierung und Digitalität (ZDD). Hierfür erwarb die Hochschule Düsseldorf im März 2019 das Areal der ehemaligen Schlösser-Brauerei von der Stadt und realisierte dort auf einer Bruttogeschossfläche von 3.214 Quadratmetern (Nettofläche 2.822 Quadratmeter) das ZDD. Nach nur rund zwei Jahren Bauzeit erfolgte Ende 2023 die Fertigstellung. Die ersten Studierenden sollen zum Wintersemester 2024/25 ihr Studium aufnehmen.
Raum für alle: flexibles Gebäudekonzept
Das zweiphasige Verfahren der Vergabeverordnung sicherte sich RKW Architektur + mit seinem Entwurf, das den Anforderungen nach Freiräumen für kreative Raumkonzepte Rechnung trägt. Das Innere ist maximal flexibel konstruiert, so dass eine projektorientierte interdisziplinäre Lehre, Start-Up-Aktivitäten und neuen Formen der Zusammenarbeit Raum möglich sind: Vortragssäle sind nicht zu finden. Auch starre Wände gibt es nur wenige, stattdessen dominieren offene Flächen und freie Decken, die Technik und Traversen zeigen für vielfältige Modulationen des gemeinschaftlichen Arbeitens.
Das Tragwerk des ZDD besteht aus einem klassischen Betonbau. Lediglich bei den Treppenläufen kamen Betonfertigteile zum Einsatz. Viele der Oberflächen, wie die Haupterschließungswand oder die Stützen des Treppenhauses, präsentieren sich in ästhetisch und sehr hochwertiger Sichtbetonqualität der Stufe 3.
Markanter Kubus öffnet sich der Umgebung
Von außen präsentiert sich das ZDD als markanter Kubus, der inklusive eines Staffelgeschosses über vier Etagen plus Untergeschoss und Technikgeschoss angelegt ist. Mit Fensterbändern an der Vorderseite und über Eck verlaufend öffnet sich der Bau seiner Umgebung. Die Verglasung gewährt Aus- und Einblicke und die visuelle Interaktion mit der Umgebung.
Für die Fensterbänder aus Pfostenriegelfassade wurde sogenanntes elektrochromes Glas (Sageglass) gewählt. Das mit einer speziellen Folie beschichtete Glas lässt sich anhand von Vorhersage- und Eingangswerten zu Wetter und Standort digital steuern „und passt dadurch natürlich auch gut zum Thema Zentrum für Digitalisierung und Digitalität“, so Architekt Michael Farrenkopf, Architekt und Projektleiter bei RKW Architekten + Düsseldorf. Über die Software verschattet beziehungsweise tönt das Glas automatisch und steuert so die Menge an Tageslicht und den Blendeffekt ins Innere sowie den Wärmeeintrag (Veränderung des G-Wertes). Auf eine Beschattungsvorrichtung konnte dadurch verzichtet werden und die freie Sicht nach draußen und die ästhetische Wirkung des sich öffnenden Kubus blieben erhalten.
Spiel mit Farben
Die Spezialisten der Henke AG, beauftragt mit der Fassadenplanung und der Montage, entwickelten einen Plan, der die Anordnung jedes einzelnen Baguettes im entsprechenden Farbton an der Fassade definierte. Diese Typisierung wurde anschließend vom Architekten geprüft und freigegeben.
Die Fassade glänzt durch verschiedene gelbe Farbnuancen und -abstufungen, durch die ein dynamisches und zugleich edles Farbspiel entsteht. Die Umsetzung der Fassadenbekleidung mit glasierten Keramikstäben, sogenannten Baguettes, in fünf Gelbtönen (RAL 1002, 1004, 1012, 1018 und 1021) greift dabei in seiner Horizontalität die Formensprache des Campus auf und orientiert sich in puncto Material an den Bestandsgebäuden.
Für eine besonders hochwertige und ästhetische Wirkung wurden die quadratischen, hohlen Keramikstäbe mit einer glatten Oberfläche versehen und im Finish glänzend auf drei, im Bereich des verglasten Treppenhauses auf vier, Seiten glasiert.
Vorteil vorgehängte hinterlüftete Fassade
Der Architekt realisierte die Gebäudehülle als vorgehängte hinterlüftete Fassade (VHF). Der Vorteil einer VHF gegenüber eines Wärmedämmverbundsystems liegt für ihn dabei klar auf der Hand: „Das System ist nachhaltiger, da sich die verschiedenen Materialien sortenrein entsorgen lassen. Außerdem ist die Oberfläche qualitativ hochwertig“, erklärt Michael Farrenkopf. Insgesamt wurde damit eine Fläche von rund 1.000 Quadratmeter eingehaust.
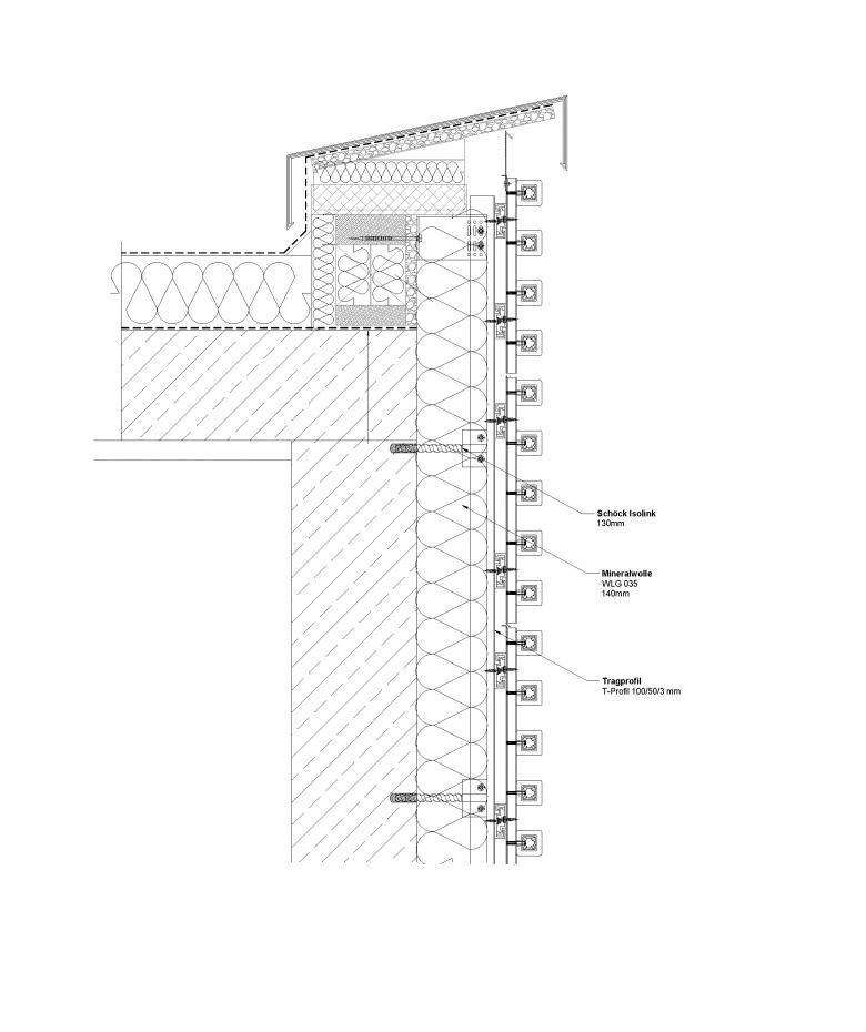
Schöck Isolink: wärmebrückenfrei und wirtschaftlich
Das ZDD sollte in Gebäudeklasse 5 umgesetzt werden. Der eingeplante U-Wert der VHF durfte dabei 0,23 W/m2K nicht überschreiten – ein Wert, der im Aufbau mit Edelstahlkonsolen und einer 180 Millimeter Dämmstoffstärke gerade so erreicht werden konnte. „Das Thema Wärmebrücken ist bei einer VHF immer ein großes Thema und bei verschiedenen Projekten habe ich es schon erlebt, dass sich der vorab pauschal veranschlagte Nachweis nicht halten ließ, weil doch mehr Befestigungspunkte notwendig waren“, berichtet Michael Farrenkopf.
Der Architekt wandte sich daher an die Experten von Schöck, die die Befestigung der VHF am ZDD mit dem Fassadenanker Schöck Isolink Typ F erarbeiteten. Damit konnten nicht nur die energetischen Anforderungen sicher erreicht werden: Durch den Einsatz von Isolink ließ sich darüber hinaus auch der Wandaufbau deutlich reduzieren.
„Die Befestigung ist dadurch wärmebrückenfrei und verfügt im Vergleich zu einer klassischen Unterkonstruktion über weniger Befestigungspunkte“, berichtet Michael Farrenkopf. „Dadurch konnten wir die Dämmstoffstärke wesentlich dünner ausprägen, nämlich mit 14 statt veranschlagter 18 Zentimeter.“ Das verschaffte dem Architekten zusätzlichen Raumgewinn: „Weil das gesamte Fassadenpaket vier Zentimeter dünner wurde, konnten wir die Wände weiter nach außen setzen. Bei so vielen Geschossen und dem Gebäudeumfang kommen da schon einige Quadratmeter zustande. Das ist ein Argument, das jeder Bauherr versteht.“
Einfache und schnelle Montage mit Schöck Isolink
Für die Montage der VHF erfolgte im ersten Schritt die Befestigung des Tragprofils (100/50/2,1 Millimeter) mit Schöck Isolink nach den Prinzipien eines Verbunddübels. Hierfür wurde ein Bohrloch erstellt und anschließend gereinigt. In dieses injizierten die Fassadenbauer einen 2-Komponenten-Verbundmörtel, in den anschließend Isolink Typ F in 180 Millimeter Länge eingesetzt wurde. Ohne Anstechen oder Spezialwerkzeug wurde darauf das Dämmmaterial (Mineralwolle WLG 035) in 140 Millimeter Stärke über den Anker gedrückt.
Anschließend konnten die Monteure die Adapterplatte aufdrehen und das T-Tragprofil an die Flügeladapter befestigen.
Die Montage der Keramikstäbe in der Größe von 50 x 50 Millimeter an das Tragprofil erfolgte über speziell entwickelte Einhängesegmente. Der Fassadenbau konnte damit deutlich beschleunigt und die gewünschte farbliche Anordnung sichergestellt werden.
- Manufacturers
- Schöck Bauteile
- År
- 2023
- Projektstatus
- Built
- Bauherr
- Hochschule Düsseldorf
- Architekt
- RKW Architektur +
- Fassadenbau
- Henke AG
Relaterede projekter
Magasin
-
-
Ugens Bygning
The Three-Body Problem: Trapped in a Wave Sandwich
Eduard Kögel, Scenic Architecture Office | 13.04.2026 -






