Ötztal Tourismus
Achweg 5, Sölden, Itävalta
Entwurfsidee
Der Baukörper positioniert sich durch respektvollen Abstand zu den Bestandsgebäuden wie selbstverständlich auf dem Grundstück.
Entsprechende Belichtung, Blickbeziehungen zu der umgebenden Berglandschaft und ein großzügiger Freiraum zwischen den Gebäuden sind somit für den Neubau, als auch für das dahinter gelegene Hotel weiterhin bewahrt.
In der Höhe und Kubatur orientiert sich das Gebäude gezielt an seiner direkten Umgebung, senkt und erhebt sich in logischer Ausrichtung und erzeugt ein dem Bauplatz und der Situierung folgend ideales Erscheinungsbild.
Dynamisch lehnt sich die Form des neuen Gebäudes nach vorne, fasst somit formal den Vorplatz ein und schafft eine klare Prominenz an entsprechender Stelle. Gleichbedeutend der Werte von Ötztal Tourismus vertritt auch der Entwurf einzigartige Attraktivität.
Vorplatz und Bodenmaterial gehen nahtlos in das komplett verglaste Erdgeschoss über, die Fassade öffnet sich maulartig nach Westen weithin, eine Grünraumzone mit dahinterliegenden Spiegelflächen verstärkt den ohnehin schon großzügigen und somit endlos wirkenden Raumeindruck.
Infolgedessen entsteht ein überaus einladender Platzcharakter, der Innen- und Außenraumgrenzen verschwimmen und sich durch seine formale Freiheit beliebig bespielen lässt.
Die äußere Erschließung erfolgt durch großzügige Öffnungen der Fassade im Erdgeschoss, als auch durch die Tiefgarage des angrenzenden Hotels. Das Gebäudeinnere durchzieht ein zentraler Erschließungskern mit Aufzug und offenem Stiegenhaus.
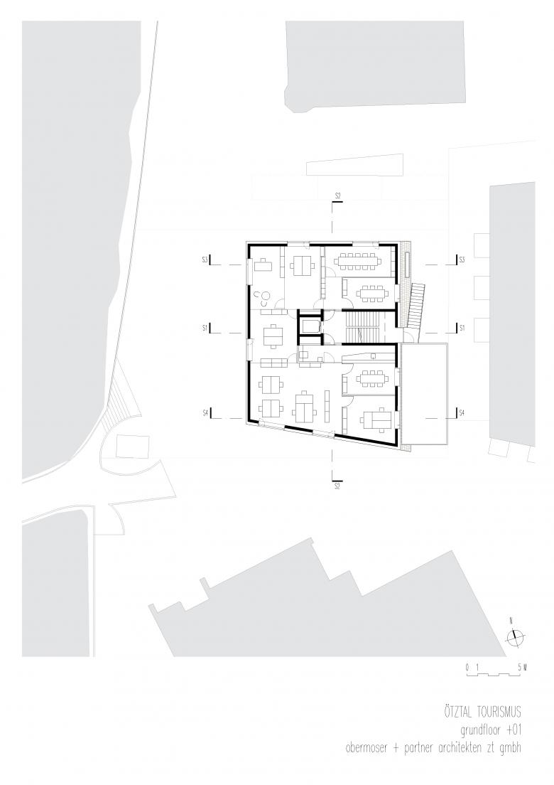
Ein freier Grundriss in jedem der oberen Geschosse ermöglicht eine äußerst flexible Raumeinteilung. Arbeitsgruppen und Themengebiete werden dennoch durch raumhohe Möbel- und Glastrennwände klar zueinander abgegrenzt, können aber durch die statische Freiheit immer wieder entsprechend ihres Inhaltes neu arrangiert werden. Somit ist eine wechselnde Zuordnung und Flexibilität der jeweiligen Funktionsbereiche auch über den Nutzungszeitraum sichergestellt.
Das obere Geschoss wartet mit einer Besonderheit auf; das Schrägdach schafft beeindruckende Raumvolumen und eine übergroße Glasrahmenkonstruktion lässt Natur, Gebäude und den Nutzer in ein außergewöhnliches Wechselspiel treten.
Konstruktion
Durch die Errichtung des Gebäudes in Holzmassivbauweise wurde eine rasche Bauzeit, als auch ein klares Bekenntnis zur Natur gewährleistet. Das entsprechende Material konnte lokal produziert werden und erlaubte ebenso kurze Lieferwege. Die Ausführung garantierte eine einfache Umsetzung des Niedrig-Energiestandards und somit ein energieoptimiertes Gebäude.
Die statisch tragende Pfosten-Riegel-Fassade im Erdgeschoss sowie der Erschließungskern ermöglichten den schwebenden Eindruck des neuen Bürogebäudes.
Das Untergeschoss wurde in wasserundurchlässigem Stahlbeton errichtet. Die Tiefgarage wurde entsprechend ihrer größtmöglichen Auslastung konzipiert, eine weitere Untergeschossebene schaffte problemlos eine noch höhere Anzahl an Stellplätzen.
Materialität
Regionale Materialien nahmen einen klaren Bezug zur umgebenden Landschaft. Durch den gekonnten Einsatz und die Materialfügung erhielt das Gebäude einen modernen, ehrlichen Charakter mit hohem Bezug auf traditionelles Handwerk.
Das großzügige Erdgeschoss mit seinen hochtechnologischen Info-Points, sowie die zurückhaltende, lineare Ausgestaltung, spiegelten die zukunftsweisende Strategie des Ötztal Tourismus wider.
Die mit vorgegrauten Lärchenschindeln verkleidete Außenhaut, in Kombination mit raumhohen Holzfenster und einer offenen Glasfassade im Erdgeschoss lässt ein überaus prominentes Gesamtbild entstehen, das aus umliegenden Gebäuden herausragt.
- Public Buildings
- Art + Installation + Exhibition
- Office Buildings
- Exhibition Halls
- Cultural Centers
- Visitor Centers
- Administration Buildings
- Furniture / Product
- arkkitehdit
- obermoser + partner architekten zt gmbh
- Year
- 2021
- Project Status
- Built
- Client
- Ötztal Tourismus
- Team
- Johann Obermoser, Felix Fehr, Christoph Neuner, Sandra Seeber, Andreas Norz
- Tragwerksplanung - Structural engineering
- ZSZ Ingenieure ZT GmbH, Innsbruck
- HKLS Installationen - Building services
- Alpsolar Klimadesign OG, Innsbruck
- Elektroplanung - Electrical design
- Eidelpes Ingenieurbüro für Elektrotechnik, Innsbruck
- Bauphysik - Building performance
- Fiby ZT-GmbH
Related Projects
Magazine
-
-
Building of the Week
The Three-Body Problem: Trapped in a Wave Sandwich
Eduard Kögel, Scenic Architecture Office | 13.04.2026 -

















