Alterswohnungen Zentrum Platte, Meilen
Alterswohnungen in Meilen
Projektwettbewerb auf Einladung 2008
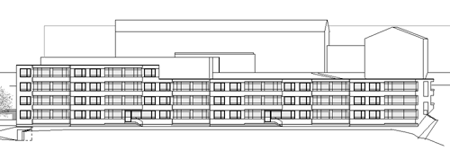
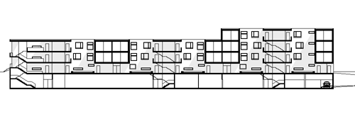
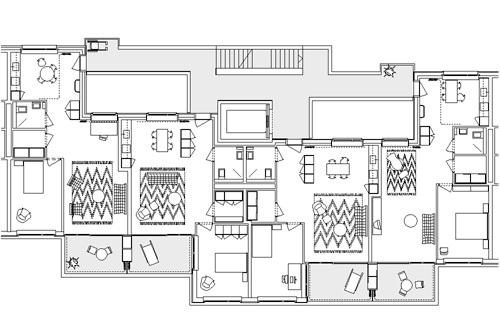
Ersatzneubau für 37 Kleinwohnungen des Alterszentrums Platte in Meilen. Die bestehende Anlage liegt hoch oben am Hang mit grandiosem Blick über den Zürichsee. Unser Anliegen war es, alle Wohnungen an dieser einmaligen Qualität teilhaben zu lassen.
Der Gebäudekörper liegt, das Eingangsgeschoss leicht eingegraben, am unteren Ende der Hangkante. Eine Reihe von Lichthöfen begleitet in regelmässigem Rhythmus die rückwärtige Gebäudeerschliessung. Sie versorgen den bergseitigen Zugangsweg grosszügig mit Licht und Luft und machen diesen zum Erlebnisraum.
- Year
- 2008
- Project Status
- Design







