LUO studio conceives an exhibition space formed by corrugated cardboards
Exhibition space design: LUO studio
Spatial design & construction instruction: LUO Yujie, Lu Zhuojian, Wang Beilei, Hong Lun, Liang
Jiahui
Exhibition theme: Back to the Future: Breaking the Time Barrier
Exhibition venue: Power Station of Art
Curators: Zuo Jing, Wang Yanzhi
Visual design: He Jianping
Participants:
Bishan Crafts Cooperatives (Liu Qingyuan, Gui Shuzhong × Yang Tao × Tang Shukun, Zhong
Yongfeng × Xiaohe); SUMMERWOOD Textiles and Penultimate (Xiang Gao), Tin Qizhen Gao, Didi
Wu; The Phadrokbha Cooperative; Healing Garden; Wang Yuanzheng; Wengwa Rainforest
Discovery; LUO studio
Corrugated cardboards supplier: Kunshan Three Doves Paper Design Studio Co.,Ltd
Exhibition space area: 661 square meters
Exhibition time: Nov. 5, 2022 - Feb. 5, 2023
LUO studio conceives an exhibition space formed by corrugated cardboards
Background:
Since the exhibition of "Long Life Design: Thinking and Practicing" has been held in the OCT Art & Design Gallery in Shenzhen (exhibition space designed by Studio 10) and Pearl Art Museum in Shanghai (exhibition space designed by Kooo Architects), curator Mr. Zuo Jing has been carrying out practices and research on sustainable design, hoping to present an exhibition with the concept of "Zero Waste". Our team has also been exploring sustainability in design practices. It was in such a context that our cooperation was made possible. This time, we designed the setting for "Back to the Future: Breaking the Time Barrier" exhibition co-curated by Zuo Jing by simply using cardboards.
Recyclable Exhibition
It is a general situation that much more attention is paid to the work before exhibition, rather than what happens afterwards. Exhibition space is usually temporary with a short life-cycle, and the exhibition installation period between opening and dismantling is also extremely short. For these reasons, a rapid, low-cost common method, i.e. the use of light steel keels, gypsum boards and latex paint (as well as other similar materials), is frequently adopted for the construction of exhibition setting. However, at the time of dismantling, the construction can only be demolished completely, resulting in a large amount of garbage and much cleaning work.
Layout and Corrugated Cardboards
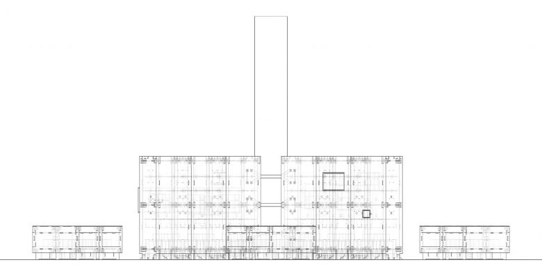
1. Existing columns
The existing space is rectangular, which is about 40m long, 16.5m wide and 6m high, with a row of concrete columns in the middle. The columns, that have a very strong presence, are 40cm-wide each, and the distance between them is 7.4 meters. A large number of traces of wrapping, hanging, drilling, and demolition have been left on the surface of these columns, which indicates that many exhibition activities previously held here have taken rapid construction and demolition, causing irreversible damage. A lot of metal connecting components for anchoring are reserved on the columns, which seems to default to an exhibition construction method that has to wrap and hide these columns.
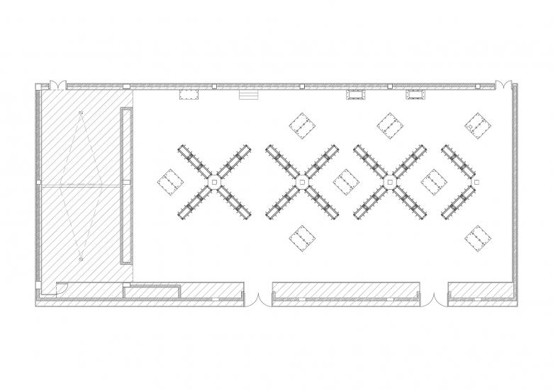
2. "X-wall"
We believe that these columns are not the negative part in the space, and they are not necessarily to be wrapped either. As the space is strongly defined by the regular columns, they can be used as the basic elements to create spatial order. Radiating from the center of each column, four display walls are combined to form an "X" shape on the plane. Each integrated "X"-shaped wall divides the space around each column into four isosceles triangular areas facing outwards. Meanwhile, two halves of the "X-wall" in between the columns form an inward-facing rectangular space. These two types of spaces can satisfy the needs of dividing the exhibition into different sections for various curators, allowing for greater flexibility and orderliness.
3. Corrugated Cardboard and the "X-wall"
Corrugated cardboard is globally recognized as a highly reusable and recyclable material. Particularly lightweight and environmentally-friendly, the material is also convenient for processing, moving, transporting and assembling. In terms of display effect, the texture and color of corrugated cardboard can match well with the exhibition theme, as well as the characteristics of the exhibits. Therefore, corrugated cardboard was chosen as the very suitable material for this exhibition with the concept of "zero waste".
The standard size of corrugated cardboards selected is 2.4m*1.2m. Since one set of "X-wall" consists of four pieces of walls extending from the center of a column in four directions, three vertical corrugated cardboards can be connected horizontally to form one piece of wall with a width of 3.6m.
Structural Connection and Details
1. Mortise and Tenon Assembly
With corrugated cardboards as structural components, CNC cutting technique was used to make concave and convex edges, through which a structure of "mortise and tenon" is created, to form insert buckles of the cardboards. Taking firmness into consideration, boards with two different thickness (15mm and 20mm) have been selected, with a standard size of 1.2m long and 2.4m wide. The smallest modular unit for the cardboard wall is 1.2m wide by 2.4m high, with a thickness of 0.6m. Beside the six pieces of cardboard installed at top and bottom, left and right, and front and back, a fixed connection plate is also added in the 2.4m-high middle section, in order to ensure the structural stability. With a wide of 1.2m, each modular wall unit has slots on the upper and lower sides for horizontal connection. Therefore, a quarter of the "X-wall" can be made by three 1.2m-wide modular cardboards.
2. Structure Details with Consideration into Exhibits and Graphic Design
Exhibits in the form of graphics and texts are mostly screen printed and directly pasted on the cardboards, while some others are fixed on the cardboards by nails. Other exhibition equipment including LCD screens, ipads, mp3 players and earphones, as well as physical exhibits such as books and woodblock print templates, require special structural components in order to be fixed and well displayed.
The biggest challenge is to install eight 53-inch LCD screens. In terms of spatial effect, the screens need to be inset into and align with the surface of the cardboards. They also need to be set at different heights and horizontal positions, to balance with the orderly displayed graphics and texts. Therefore, a special structural scheme of installation needs to be applied. In order to realize this idea and shorten the construction time, flexible reinforcement components are set in the module, so that the LCD screens can be installed in any position by adjusting the special components in vertical and horizontal ways.
The ipads, mp3 plays and earphones are also set on cardboard with assembled mortise and tenon components. For the placement of books and woodblock print templates, hot-bent acrylic boards and connecting cardboards are customized according to the size.
3. Detailed Construction Measures for Stabilization
Corrugated cardboard is relatively light compared to other conventional construction materials. In order to stabilize the exhibition walls and stands, a number of construction measures have been carried out. One of the measures is to install supporting legs and skirtings. Each 1.2m-wide module is 15cm above the floor and is equipped with 3 plates as supporting legs, and each plate protrudes 15cm from the exhibition wall in both directions .It helps avoiding damage to the cardboard walls caused by visitors who touch unintentionally by feet when standing and watching the exhibits. Besides, the cardboard walls are reinforced simultaneously. Inside each module, certain amount of space is reserved for setting a sandbox (existing props owned by Power Station of Art) as a counterweight, so that each single module has enough load-bearing capacity to ensure stability in case of that the cardboard walls are touched or pushed. Furthermore, the 3.6m-wide walls formed by every three modules are connected with each other near the center of each column. Connected by steel components, the overall structure can be further stabilized.
Rapid Construction and Recycle
1. Rapid Production and Installation Process by Non-professionals
Due to the low density of cardboard, it takes a shorter time for CNC cutting and processing, compared with other conventional building materials. All the 320 pieces of raw cardboards used for the exhibition were processed into 2,566 cardboard components in less than two days. Finally, 42 vertical exhibition modules with a size of 1.2m*2.4m*0.6m and 22 stand exhibition modules were assembled within only two days by six or seven people on site. Such an efficient construction process benefits from not only the lightness of cardboard material, but also the non-necessity of using any assembly tools. Moreover, ordinary people can also take over the work of the professional constructors to assemble the cardboards with bare hands. It also provides great convenience for the following activities of material recycle and reuse.
2. Highly Recyclable
The used corrugated cardboards will be disassembled and then reassembled and installed in different places serving the following exhibitions curated by Mr. Zuo Jing. On the other hand, these walls and stands made from corrugated cardboards can also be taken by people who are interested in after the exhibition concludes. Even after losing all these functions, discarded corrugated cardboards can still be recycled and reused up to 96%.
Conclusion:
Using cardboards to create an exhibition space, the project tries to avoid construction waste during temporary exhibition program. Highly recyclable corrugated cardboards are assembled with mortise and tenon structures to form walls and stands for the exhibition. Environmentally speaking, it satisfies the requirements of "reduce, reuse and recycle", and the construction of the exhibition space itself has become one part of the exhibits.
- Rok
- 2022
- Project Status
- Built








































